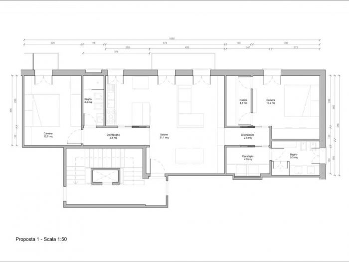
Ristrutturazione completa dell'immobile, con modifiche sostanziali della distribuzione interna. Asse centrale di distribuzione, con ingresso su ampio salone con angolo cottura e due zone notte ai lati.
Questo sito o gli strumenti terzi da questo utilizzati si avvalgono di cookie necessari al funzionamento ed utili alle finalità illustrate nella cookie policy. Se vuoi saperne di più o negare il consenso a tutti o ad alcuni cookie, consulta la cookie policy. Chiudendo questo banner, scorrendo questa pagina, cliccando su un link o proseguendo la navigazione in altra maniera, acconsenti all'uso dei cookie.