Menu

Cofra Architettura Design Innovazione

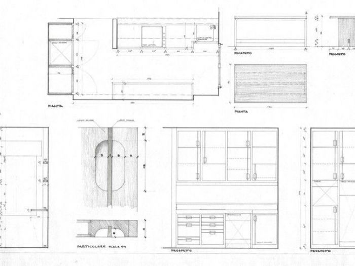
Ristrutturazione di un appartamento in un edificio bifamiliare - Padova (PD)

Numero di immagini
3
Visite ricevute
430
Like ricevuti
Ristrutturazione di un appartamento in un edificio bifamiliare. Riorganizzazione degli spazi interni con arredamento su misura.
 
Vedi gli altri progetti
 
Vai su
Invia una richiesta di lavoro a Cofra Architettura Design Innovazione
+ Allega file
Invia
 
Architetti vicino a te
Professionisti selezionati:
Cambia filtri
INVIA
Modifica filtri
Annulla
Chiedi un preventivo gratuito a Cofra Architettura Design Innovazione