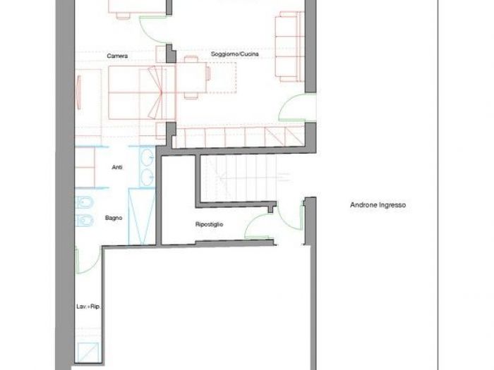
Ristrutturazione di un appartamento in centro storico di padova, per realizzare un monolocale di circa mq.60 con ripostiglio esterno e due garage pertinenze di abitazioni. Particolare cura è stata adottata per risanare le murature, conservare la travatura originale, sostituire tutti gli impianti e rinforzare la struttura portante. Parzialmente arredato (cucina,bagno) con impianto di illuminazione a led, climatizzazione, riscaldamento autonomo, idromassaggio e cromoterapia.
Chiedi un preventivo gratuito aCofra Architettura Design Innovazione
INFORMATIVA
Questo sito o gli strumenti terzi da questo utilizzati si avvalgono di cookie necessari al funzionamento ed utili alle finalità illustrate nella cookie policy. Se vuoi saperne di più o negare il consenso a tutti o ad alcuni cookie, consulta la cookie policy. Chiudendo questo banner, scorrendo questa pagina, cliccando su un link o proseguendo la navigazione in altra maniera, acconsenti all'uso dei cookie.