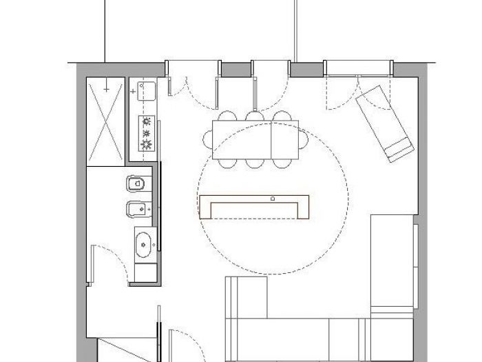
Ristrutturazione e arredamento di un mini appartamento. Il progetto prevede di soddisfare diverse esigenze funzionali, mediante il movimento di alcuni elementi d'arredo. La zona servizi è stata concentrata in un unico blocco, lasciando libera l'area trasformabile. Un video del funzionamento del mobile è qui.
Chiedi un preventivo gratuito aCofra Architettura Design Innovazione
INFORMATIVA
Questo sito o gli strumenti terzi da questo utilizzati si avvalgono di cookie necessari al funzionamento ed utili alle finalità illustrate nella cookie policy. Se vuoi saperne di più o negare il consenso a tutti o ad alcuni cookie, consulta la cookie policy. Chiudendo questo banner, scorrendo questa pagina, cliccando su un link o proseguendo la navigazione in altra maniera, acconsenti all'uso dei cookie.