Menu

Cofra Architettura Design Innovazione

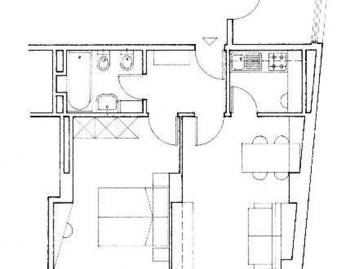
Ristrutturazione - Padova (PD)

Numero di immagini
7
Visite ricevute
416
Like ricevuti
Ristrutturazione ed arredamento di un appartamento bilocale, in un edificio multipiano.
 
Vedi gli altri progetti
 
Vai su
Invia una richiesta di lavoro a Cofra Architettura Design Innovazione
+ Allega file
Invia
 
Architetti vicino a te
Professionisti selezionati:
Cambia filtri
INVIA
Modifica filtri
Annulla
Chiedi un preventivo gratuito a Cofra Architettura Design Innovazione