Menu

Cofra Architettura Design Innovazione

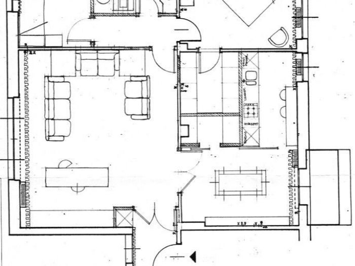
Ridistribuzione degli spazi interni di un appartamento - Padova (PD)

Numero di immagini
1
Visite ricevute
428
Like ricevuti
Ridistribuzione degli spazi interni per rendere più funzionale l'appartamento.
 
Vedi gli altri progetti
 
Vai su
Invia una richiesta di lavoro a Cofra Architettura Design Innovazione
+ Allega file
Invia
 
Architetti vicino a te
Professionisti selezionati:
Cambia filtri
INVIA
Modifica filtri
Annulla
Chiedi un preventivo gratuito a Cofra Architettura Design Innovazione