Menu

Coarch Studio

Sm22 - Milano (MI)

Numero di immagini
68
Visite ricevute
878
Like ricevuti
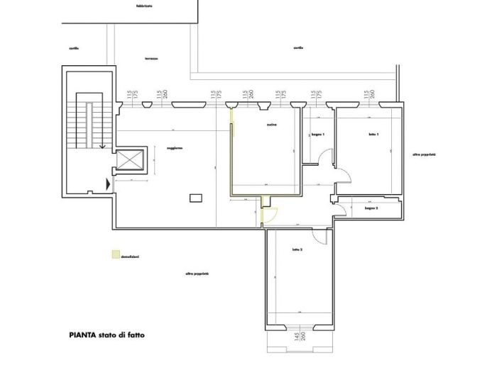
Sm22 un interno milanese. I proprietari una coppia di giovani amanti dell’arte contemporanea e dell’architettura, ci hanno chiesto di progettare la loro prima casa : un appartamento di circa 120 mq in via san marco. Il primo lavoro fatto insieme a loro è stato un brainstorming in cui ci hanno trasferito le loro richieste in termini spaziali e anche consegnato un meticoloso inventario dei pezzi di arte contemporanea e di design a cui trovare spazio. Il secondo passaggio è stata la ricerca dei riferimenti più adatti per il progetto. Abbiamo cercato di omaggiare la tradizione degli interni milanesi di portaluppi, bottoni e ponti. Gio ponti, nel "manifesto della casa adatta" del 1970 delinea alcuni punti che sono stati spunto per il progetto : Non dobbiamo adattarci noi a una casa generica ma è la casa che deve adattarsi a noi. 1_ la casa adatta è un modo di pensare all’abitazione in modo versatile per farne espressione della nostra individualità culturale. 2_ abbandonare gli schemi di locali segregati collegati da anticamere, corridoi e porte, 3_ non più muri davanti agli occhi, non più spazi maggiori o minori, avere alloggi di superficie complessivamente minore e spazi ambientali più grandi, di più grande respiro e vedute interne più profonde 4_gli spazi minori areati dalle loro finestre sono come nicchie o alcove della stanza maggiore, sono cioè spazi che si aggiungono allo sguardo della stanza maggiore questo è ciò che ponti chiama spazi integrati Il progetto non stravolge l’esistente e prevede la rimodulazione della cucina a favore del grande spazio della zona giorno, dal quale si hanno vedute rese più profonde dalla creazione di una nicchia per lo studio e anche verso l’esterno. La cucina e la zona di passaggio verso la zona notte sono racchiuse da nuove pareti e sono immaginate come volumi tecnici. La zona notte e i bagni sono riattrezzati e ridistribuiti. La parete verticale in legno che delimita la zona giorno fa da sfondo ai quadri di bronstein, mentre l’opera più grandi di nitch è appesa nella parete più lunga della casa e visibile dalla zona giorno. Una delle colonne portanti è stata rivestita con lastre di ottone in modo che rifletta la stanza anziché essere un ostacolo visivo. Le nuove pareti divisorie interne, chiudono plasticamente gli spazi e sono realizzate in pannelli di multistrato di legno, per differenziarsi dall’esistente. Le interruzioni materiche la colonna riflettente, la quinta in legno e l’innesto di cementine, determinano il soggiorno, dividono lo spazio in luoghi di passaggio, di convivialità e di osservazione. Uno delle viste della zona giorno è la nicchia, uno spazio pensato come un piccolo studio, seduti alla scrivania tuttavia si vede la terrazza. Abbiamo disegnato una libreria in legno con montanti triangolari che avvolgesse lo spazio e contenesse i libri e le opere d’arte. Il pavimento è, e deve essere, anche il gioco di materie: nella loro successione, deve istituire “sequenze” di materie e così di colore, come di dimensioni e di forme: il pavimento è un “finito” fantastico e preciso, è una progressione o successione. Nei abbiamo creato pattern geometrici usando le cementine esagonali. Uno dei nostri propositi è quello di cercare la collaborazione di altri creativi. Abbiamo coinvolto due illustratori, insunsit, per realizzare un disegno sulle tre pareti della camera della bambina raffigurante una giungla onirica con animali dai colori vivaci. Il disegno diventa uno sfondo che catapulta in una nuova visione dello spazio, per far sparire le pareti della stanza e avere un orizzonte da osservare. Un giardino deve rappresentare un sogno ad occhi aperti, non un disegno. La terrazza su cui si affacciano quasi tutti gli ambienti della casa è stata pensata come una stanza verde e contemporaneamente come una quinta. Si è scelto di creare un giardino selvaggio di miscanthus e carex, realizzando coni ottici dall’interno delle stanze. Una parete vegetale, mediante l’installazione di vasi in ceramica realizzati da marlik ceramic, una giovane designer iraniana. I tiranti in corda uniscono i vasi e creano un disegno geometrico. Ad architettura rigorosa e semplice contrasta bene un giardino disordinato: un ordine dell’architettura nella natura senza ordine Molti elementi sono stati realizzati su misura seguendo quella che era la linea architettonica. I buoni propositi in questo caso sono stati di avere la possibilità di farne un contenitore che ha ospitato più menti creative in modo da arricchire il progetto in tutti i suoi aspetti. Da questo progetto è nato sm22line una famiglia di tavoli il cui primo esemplare era stato disegnato per la sala da pranzo. La struttura è solido disegnato in tondino metallico e il piano è in legno verniciato. Abbiamo deciso quindi di partecipare la salone del mobile per metterci in gioco e per farci conoscere. Ci è venuto naturale sviluppare una linea e pensare a una famiglia di oggetti declinandolo in varie tipologie e colori per farlo diventare un prodotto di design. Le regole erano semplici, che fosse possibile ibridare insieme più oggetti di design come la lampada e il tavolo e che l’oggetto fosse bello da tutte le angolazioni. Abbiamo esposto da base milano, che apriva al pubblico per la prima volta e aveva chiesto a noi e ad altri 4 designer di allestire casa base, un ostello di design per giovani. Abbiamo pensato un allestimento molto semplice, e fresco con le pareti azzurre e piante da interni voluminose che fluttuavano. L’esposizione ci ha fatti conoscere e ci permesso di essere pubblicati su domus e su altre riviste. Non riusciamo a dire se commercialmente ci ha fatto fare un salto o no, il nostro obiettivo era quello di aprirci altre porte.
 
Vedi gli altri progetti
 
Vai su
Invia una richiesta di lavoro a Coarch Studio
+ Allega file
Invia
 
Architetti vicino a te
Professionisti selezionati:
Cambia filtri
INVIA
Modifica filtri
Annulla
Chiedi un preventivo gratuito a Coarch Studio