Progettazione architettonica ed impianistica - Roma (RM)
5
440
0
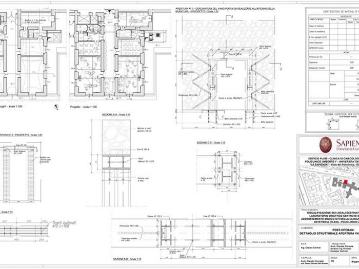
Affidamento incarico professionale relativo alla progettazione architettonica ed impiantistica, coordinamento della sicurezza in fase di progettazione e di esecuzione relativamente ai lavori di riqualificazione dei locali destinati ad attività di laboratorio didattico centro di simulazione e addestramento medico siti nella clinica di ginecologia e ostetricia (pl036), policlinico umberto i roma.
Questo sito o gli strumenti terzi da questo utilizzati si avvalgono di cookie necessari al funzionamento ed utili alle finalità illustrate nella cookie policy. Se vuoi saperne di più o negare il consenso a tutti o ad alcuni cookie, consulta la cookie policy. Chiudendo questo banner, scorrendo questa pagina, cliccando su un link o proseguendo la navigazione in altra maniera, acconsenti all'uso dei cookie.