Il progetto nasce dall'esigenza di creare un'abitazione confortevole per una giovane famiglia con due figli.
Le esigenze sono sicuramente quelle di creare una zona living ampia, vivibile da tutta la famiglia, con spazi tali da permettere di organizzare cene conviviali con amici.
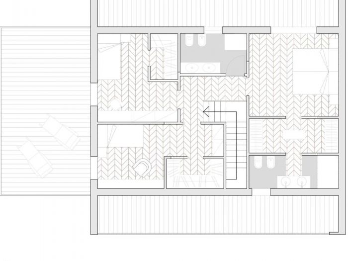
La zona notte, parte più intima della casa, ospita le tre camere da letto.
Il concept progettuale nasce dalla sovrapposizione di due solidi e dalla rotazione ortogonale di quello sovrastante, creando cosi degli spazi esterni coperti al piano inferiore.
Al piano terra il rivestimento in pietra conferisce al prospetto un carattere solido.
Gli spazi esterni, molto ampi, sono anch'essi vivibili da tutta la famiglia.
Questo sito o gli strumenti terzi da questo utilizzati si avvalgono di cookie necessari al funzionamento ed utili alle finalità illustrate nella cookie policy. Se vuoi saperne di più o negare il consenso a tutti o ad alcuni cookie, consulta la cookie policy. Chiudendo questo banner, scorrendo questa pagina, cliccando su un link o proseguendo la navigazione in altra maniera, acconsenti all'uso dei cookie.