Menu

Bgp Studio

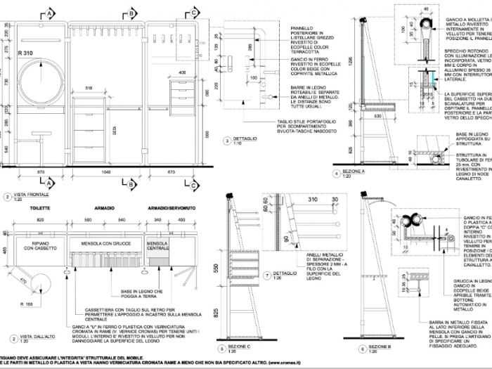
Bgp studio-k11 - Monza (MB)

Numero di immagini
4
Visite ricevute
846
Like ricevuti
Come tenere in ordine il guardaroba con k11: l'armadio modulare Quando l'armadio diventa leggero Avete bisogno di un armadio poco ingombrante, che vi aiuti a tenere tutto in ordine, e che sia esso stesso un elemento di decoro della vostra stanza? La risposta è k11. K11 è un armadio con sistema modulare a vista, che integra in modo fluido la funzione di armadio tradizionale con quella del servomuto e della toilette. Ideale per spazi piccoli, loft, e spazi di ospitalità dove si necessitano arredi multifunzionali, personalizzabili, leggeri e componibili a seconda delle esigenze, per un guardaroba sempre in ordine. Ogni modulo è vendibile come singolo, o in composizione con altri, ed include una serie di componenti assegnati che possono variare in dimensione e numero a seconda delle esigenze del cliente (es. Larghezza della cassettiera, numero di mensole e appendici).k11 rappresenta una tendenza evidente del nostro periodo, dove prima di arrivare all’armadiatura definitiva e solida si passa da soluzioni dinamiche e facilmente riadattabili ai bisogni della persona. Costituisce una soluzione di qualità rispetto all’offerta della grande distribuzione, ed un’alternativa economica alle proposte dei marchi di prestigio. Hai una stanza o un piccolo hotel/airbnb che necessita di un armadio pratico, leggero e componibile a seconda delle esigenze? K11 è l’ideale, non esitare a contattarci per ordine o info aggiuntive!
 
Vedi gli altri progetti
 
Vai su
Invia una richiesta di lavoro a Bgp Studio
+ Allega file
Invia
 
Designer di Interni vicino a te
Professionisti selezionati:
Cambia filtri
INVIA
Modifica filtri
Annulla
Chiedi un preventivo gratuito a Bgp Studio