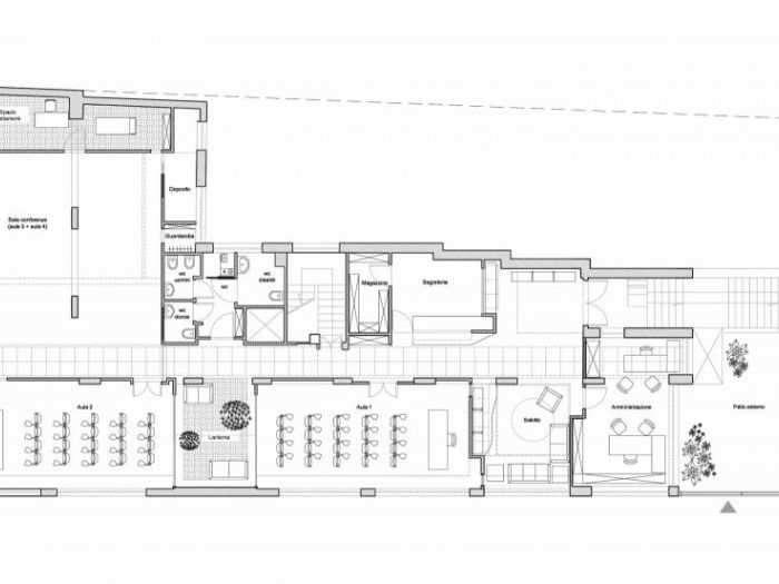
Luci basse e trasparenze riconducono alla poetica delle ombre cinesi. Una lunga galleria,con fluido sviluppo,porta verso i luoghi dello spirito e delle attività.
Un muro ora frammentato,ora compatto,illuminato da luci soffuse,ci accompagna nel cammino.
Soste meditative consentono di trovare pace interiore.
Luoghi dove il tempo scorre lento,dove ogni gesto è guidato da calma e serenità:la lanterna,la sala del thè,lo spazio dedicato ai trattamenti.
La sala del thè è luogo di conversazione e rilassamento.
La lanterna,luminosa e conchiusa,spazio virtuale di finestre scorrevoli e riflessi specchiati,ci riporta ad un possibile esterno. La lunga galleria si snoda per tutta l'accademia e termina nella grande sala dell'aula magna che si configura come una corte interna dove si affacciano la seconda aula ed altri spazi a servizio delle attività che si svolgono.
Questo sito o gli strumenti terzi da questo utilizzati si avvalgono di cookie necessari al funzionamento ed utili alle finalità illustrate nella cookie policy. Se vuoi saperne di più o negare il consenso a tutti o ad alcuni cookie, consulta la cookie policy. Chiudendo questo banner, scorrendo questa pagina, cliccando su un link o proseguendo la navigazione in altra maniera, acconsenti all'uso dei cookie.