Menu

Antonio Calì

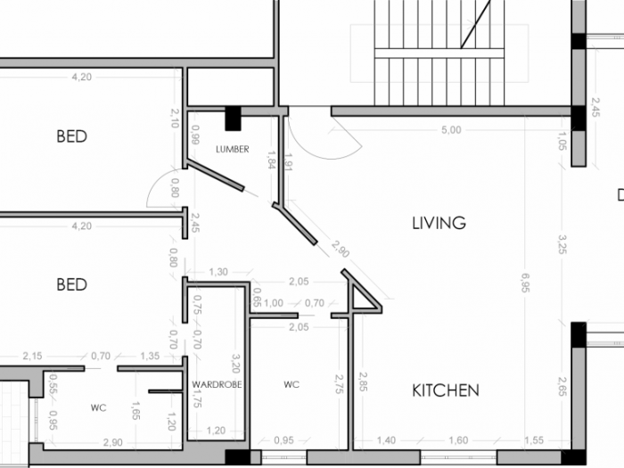
Ristrutturazione e trasformazione di un appartamento di 100 mq - Valguarnera Caropepe (EN)

Numero di immagini
10
Visite ricevute
1.1K
Like ricevuti
Il progetto è stato commissionato da una giovane coppia e riguarda la ridistribuzione e la modernizzazione di un appartamento posto al secondo piano un piccolo edificio. L’appartamento preesistente presentava una superficie di 100 mq, compresa di una terrazza e un balcone. Vi era una zona di ingresso che divideva la zona giorno (sala da pranzo più una piccola cucina) dalle due camere da letto, esposte a sud e sud-ovest. Le richieste dei committenti erano di invertire le due zone per poter usufruire meglio dell’ottima esposizione solare. Inoltre necessitavano un ampliamento della superficie coperta, sia per una zona abitabile più grande e confortevole che per una stanza da letto secondaria. Il risultato è un grande open space in cui le aree di soggiorno, cucina e pranzo si identificano chiaramente attraverso la geometria e l’illuminazione del controsoffitto e la disposizione degli arredi. La vecchia terrazza adesso è chiusa da due grandi aperture orientate in modo tale da apportare luce in tutte le ore del giorno. All’ingresso, una parete obliqua accompagna lo sguardo verso la nuova zona giorno. Nella stessa parete si apre una porta che conduce ad uno spazio-cerniera in cui si affacciano il bagno principale, un ripostiglio, la camera da letto secondaria e la camera da letto patronale, che è fornita di bagno in camera e di cabina armadio, grazie agli spazi della ex-cucina. La grande quantità di luce naturale proveniente dalle aperture della zona giorno e la luce artificiale del complesso sistema di illuminazione si diffondono sulle pareti bianche della casa, mettendo in evidenza gli arredi e le pareti nevralgiche della casa. L’appartamento consta adesso di 103 mq di superficie coperta (30 in più della versione precedente) e di un balcone di 13 mq a servizio delle due camere da letto. Particolare attenzione è stata data al dislocamento delle tubature di servizio, lasciando il bagno principale nella sua posizione originaria e spostando la cucina sulla stessa parete in cui era posta prima.
 
Vedi gli altri progetti
 
Vai su
Invia una richiesta di lavoro a Antonio Calì
+ Allega file
Invia
 
Architetti vicino a te
Professionisti selezionati:
Cambia filtri
INVIA
Modifica filtri
Annulla
Chiedi un preventivo gratuito a Antonio Calì