Menu

Antonina Cremona

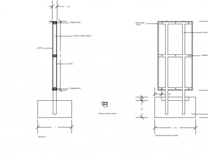
Totem per insegna pubblicitaria - Mazara del Vallo (TP)

Numero di immagini
2
Visite ricevute
496
Like ricevuti
Ho realizzato un totem per l'agenzia gdm immobilare sito a mazara del vallo
 
Vedi gli altri progetti
 
Vai su
Invia una richiesta di lavoro a Antonina Cremona
+ Allega file
Invia
 
Architetti vicino a te
Professionisti selezionati:
Cambia filtri
INVIA
Modifica filtri
Annulla
Chiedi un preventivo gratuito a Antonina Cremona