Menu

Antonella Liguori Architetto

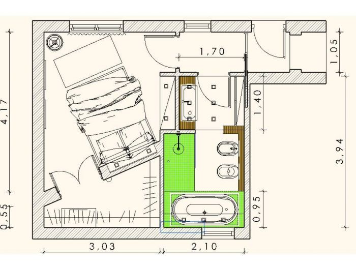
Studio interni particolareggiato - Asti (AT)

Numero di immagini
3
Visite ricevute
572
Like ricevuti
Lo studio di interni particolareggiato consiste nello studio accurato e dettagliato di uno specifico ambiente della casa che si desidera realizzare ex-novo o rinnovare. Prevede lo studio architettonico dell'ambiente in oggetto, attraverso la planimetria e la scelta degli arredi, dei colori e dei materiali con la realizzazione di bozzetti prospettici e il suggerimento di esempi di arredo rintracciabili sul mercato. Cosa ricevi: - planimetria a colori, in scala opportuna, con l'indicazione degli elementi di arredo, in formato pdf o jpg; - eventuale planimetria, in scala opportuna, con indicazione di demolizioni/costruzioni che si rendessero necessarie e relative quote, in formato pdf o jpg; - 1 bozzetto prospettico; - suggerimenti di esempi di arredo; - relazione tecnica con descrizione delle scelte progettuali e degli eventuali lavori da svolgere; Cosa occorre fornire: - pianta con indicate l'altezza del locale, la dimensione e posizione di porte, finestre e termosifoni (in caso non si disponesse di un disegno in formato cad -dwg- è possibile inviare un disegno o una copia della scheda catastale in altro formato); - indicazione in pianta di eventuali scarichi, canne fumarie, allacci acqua, gas, prese elettriche, ecc.; - fotografie in formato jpg dell'ambiente in oggetto; - descrizione dei gusti e delle esigenze che si richiede di soddisfare attraverso l'intervento progettuale e di tutte le informazioni che riterrete utili per meglio personalizzare il vostro ambiente
 
Vedi gli altri progetti
 
Vai su
Invia una richiesta di lavoro a Antonella Liguori Architetto
+ Allega file
Invia
 
Architetti vicino a te
Professionisti selezionati:
Cambia filtri
INVIA
Modifica filtri
Annulla
Chiedi un preventivo gratuito a Antonella Liguori Architetto