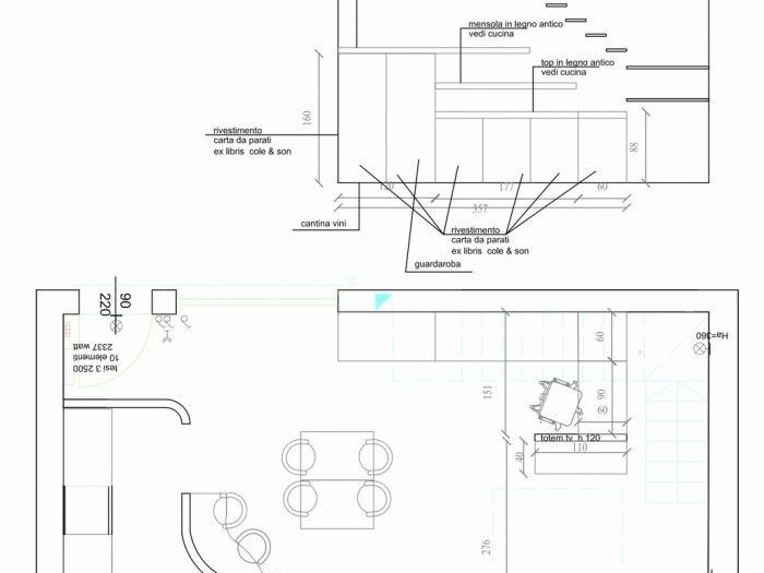
Zona fiera a milano ,recupero laboratorio artigianale , trasformato in loft su due livelli per ingegnere single,progettazione e realizzazione arredo su misura. Anno 2009,tempi di realizzazione cinque mesi.
Questo sito o gli strumenti terzi da questo utilizzati si avvalgono di cookie necessari al funzionamento ed utili alle finalità illustrate nella cookie policy. Se vuoi saperne di più o negare il consenso a tutti o ad alcuni cookie, consulta la cookie policy. Chiudendo questo banner, scorrendo questa pagina, cliccando su un link o proseguendo la navigazione in altra maniera, acconsenti all'uso dei cookie.