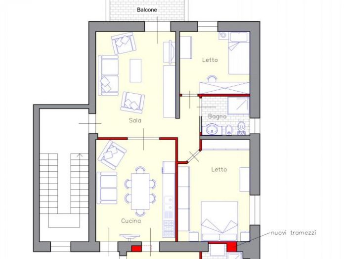
Appartamento di circa 90-100 mq situato in zona residenziale. La distribuzione interna creava dei problemi di relazione tra gli spazi e di luce. Trattandosi di una coppia di signori che volevano degli spazi ampi e luminosi, dove poter sistemare i loro mobili, la scelta della sistemazione interna con la sola demolizione di qualche tramezzo è sembrata la soluzione migliore. Inoltre, ho preferito spostare la collocazione dell'ambiente bagno per una migliore gestione degli spazi. Sul progetto definitivo ho fatto dei render per la progettazione degli arredi interni .
Questo sito o gli strumenti terzi da questo utilizzati si avvalgono di cookie necessari al funzionamento ed utili alle finalità illustrate nella cookie policy. Se vuoi saperne di più o negare il consenso a tutti o ad alcuni cookie, consulta la cookie policy. Chiudendo questo banner, scorrendo questa pagina, cliccando su un link o proseguendo la navigazione in altra maniera, acconsenti all'uso dei cookie.