Menu

Amodo

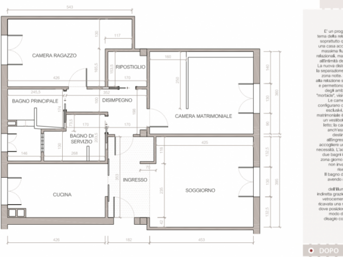
Una casa accogliente - Bologna (BO)

Numero di immagini
4
Visite ricevute
605
Like ricevuti
Ristrutturazione completa
 
Vedi gli altri progetti
 
Vai su
Invia una richiesta di lavoro a Amodo
+ Allega file
Invia
 
Architetti vicino a te
Professionisti selezionati:
Cambia filtri
INVIA
Modifica filtri
Annulla
Chiedi un preventivo gratuito a Amodo