Menu

Amodo

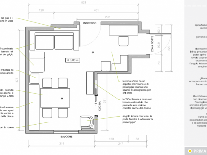
Un soggiorno in stile nordico - Bologna (BO)

Numero di immagini
4
Visite ricevute
621
Like ricevuti
Studio d'arredo
 
Vedi gli altri progetti
 
Vai su
Invia una richiesta di lavoro a Amodo
+ Allega file
Invia
 
Architetti vicino a te
Professionisti selezionati:
Cambia filtri
INVIA
Modifica filtri
Annulla
Chiedi un preventivo gratuito a Amodo