Menu

Amodo

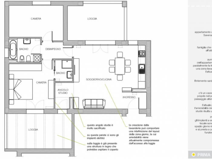
Trasformazione di una loggia - Bologna (BO)

Numero di immagini
5
Visite ricevute
458
Like ricevuti
Ristrutturazione leggera
 
Vedi gli altri progetti
 
Vai su
Invia una richiesta di lavoro a Amodo
+ Allega file
Invia
 
Architetti vicino a te
Professionisti selezionati:
Cambia filtri
INVIA
Modifica filtri
Annulla
Chiedi un preventivo gratuito a Amodo