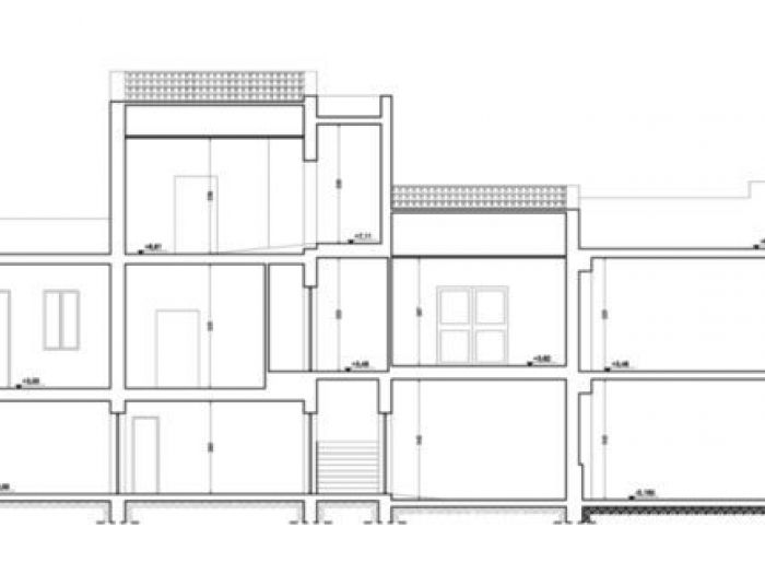
Progetto esecutivo e coordinamento della sicurezza in fase di progettazione dei lavori di “manutenzione straordinaria dell’ex-asilo san giuseppe” a misilmeri. Il progetto prevede interventi di manutenzione straordinaria necessari a rendere l’immobile idoneo ad ospitare una biblioteca e un centro ricreativo per anziani al piano terra, un museo garibaldino al primo piano e un museo etnoantropologico al primo e secondo piano.
Questo sito o gli strumenti terzi da questo utilizzati si avvalgono di cookie necessari al funzionamento ed utili alle finalità illustrate nella cookie policy. Se vuoi saperne di più o negare il consenso a tutti o ad alcuni cookie, consulta la cookie policy. Chiudendo questo banner, scorrendo questa pagina, cliccando su un link o proseguendo la navigazione in altra maniera, acconsenti all'uso dei cookie.