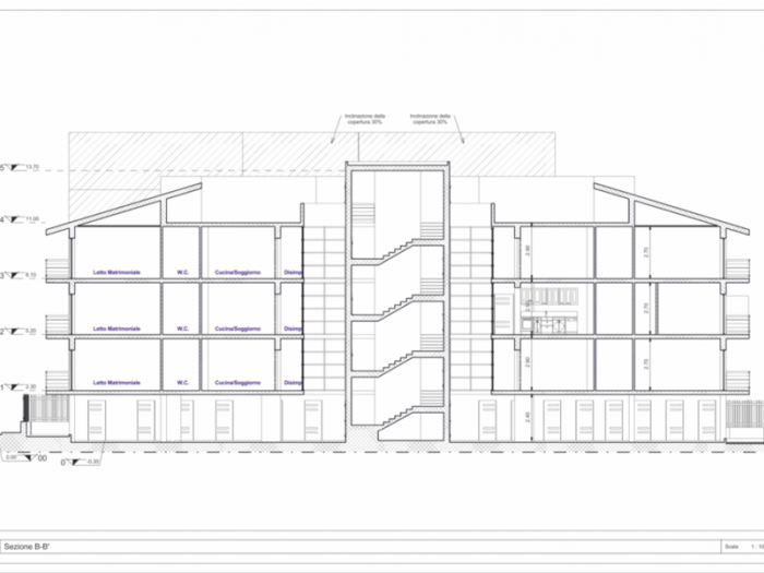
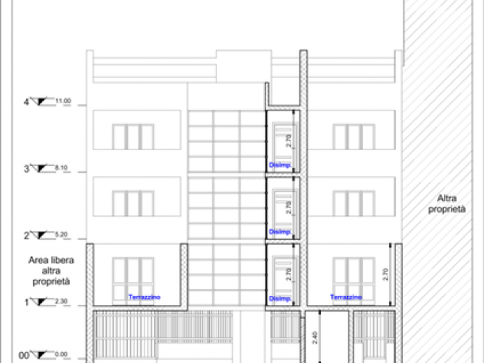
Progetto per la realizzazione di una unità immobiliare da destinare alla residenza, nel comune di ficarazzi. Sull’area oggetto di interveno insiste un immobile che sarà
Demolito, composto da piano terra e piano rialzato. Il progetto prevede la realizzazione di una palazzina a quattro elevazioni fuori terra più un piano adibito a locale tecnico e riserva idrica. L’edificio conterrà al piano terra il parcheggio e le cantine, al primo, secondo e terzo livello fuori terra quattro appartamenti per piano
Destinati alla residenza, mentre il quarto piano sarà costituito da terrazzo di
Copertura e tetto a falde.
Questo sito o gli strumenti terzi da questo utilizzati si avvalgono di cookie necessari al funzionamento ed utili alle finalità illustrate nella cookie policy. Se vuoi saperne di più o negare il consenso a tutti o ad alcuni cookie, consulta la cookie policy. Chiudendo questo banner, scorrendo questa pagina, cliccando su un link o proseguendo la navigazione in altra maniera, acconsenti all'uso dei cookie.