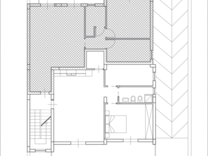
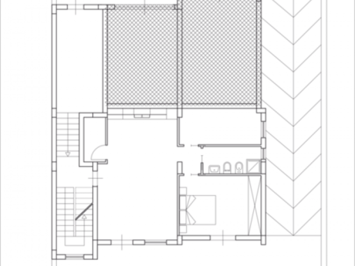
Intervento di completamento di una unità immobiliare a tre elevazioni fuori terra a destinazione residenziale. Il progetto prevede la realizzazione di: due magazzini da destinare a parcheggio; un locale tecnico; cinque appartamenti da destinare a civile abitazione (di cui uno al piano terra, e due per ogni piano al primo e secondo livello).
Questo sito o gli strumenti terzi da questo utilizzati si avvalgono di cookie necessari al funzionamento ed utili alle finalità illustrate nella cookie policy. Se vuoi saperne di più o negare il consenso a tutti o ad alcuni cookie, consulta la cookie policy. Chiudendo questo banner, scorrendo questa pagina, cliccando su un link o proseguendo la navigazione in altra maniera, acconsenti all'uso dei cookie.