Menu

Alessandro Restori

Recupero di sottotetto - Cologno Monzese (MI)

Numero di immagini
11
Visite ricevute
3.6K
Like ricevuti
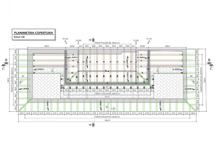
Da soffitta a spazio abitabile: ecco un caso di intervento in cui è stato previsto anche l’innalzamento del tetto per ottenere le altezze richieste; si è quindi proceduto al completo rifacimento della copertura e della coibentazione. L recupero di sottotetti in origine non abitabili è consentito a condizione che l’intervento interessi locali preesistenti, che vengano rispettate le distanze di legge dai fabbricati vicini e che gli ambienti abbiano le altezze minime previste dalla normativa. In questo caso, per poterle ottenere, è stato necessario rialzare di circa 150 cm la quota laterale lasciando intatta la quota di colmo. (modificare l’altezza del tetto o le pendenze al fine di ottenere le altezze richieste è consentito solo in alcune regioni (lombardia, friuli venezia-giulia, lazio, sardegna e umbria) mentre è escluso nelle altre; esistono comunque sempre limitazioni e vincoli nelle zone di particolare pregio storico. ) • l’innalzamento di questo sottotetto ha comportato la demolizione della struttura preesistente e il completo rifacimento della copertura in legno, comprese le travi principali. • inoltre, poiché la vecchia copertura poggiava sul pilastro e sulle murature portanti, prima di realizzare quella nuova è stato necessario “allungare” anche queste strutture verticali, nella misura necessaria a innalzare il tetto. Prima di procedere a opere murarie di questo tipo occorrono verifiche statiche da parte di un ingegnere strutturista. • la nuova orditura del tetto è formata da travi principali e travi secondarie in lamellare, sulle quali poggia l’assito, sempre in legno e tutto a vista. Sopra quest’ultimo, all’esterno, è stata posata l’impermeabilizzante e quindi lo strato isolante. La copertura superiore di tegole è leggermente rialzata così da lasciare un’intercapedine e realizzare un tetto ventilato che garantisce l’ottimale isolamento termico dei locali. Per rispettare i rapporti aereoilluminanti e assicurare il necessario apporto di aria e luce agli ambienti nei locali del sottotetto è possibile aggiungere nuovi lucernari sulla falda. (in produzione esistono modelli altamente tecnologici, con vetri basso-emissivi per garantire il massimo comfort termico; sono in genere dotati di un sistema motorizzato per il controllo dell’apertura del serramento e delle tende oscuranti. )
 
Vedi gli altri progetti
 
Vai su
Invia una richiesta di lavoro a Alessandro Restori
+ Allega file
Invia
 
Architetti vicino a te
Professionisti selezionati:
Cambia filtri
INVIA
Modifica filtri
Annulla
Chiedi un preventivo gratuito a Alessandro Restori