Menu

Alessandro Eletto

Tel edificio plurifamigliare - lumino (ch) - Genova (GE)

Numero di immagini
8
Visite ricevute
576
Like ricevuti
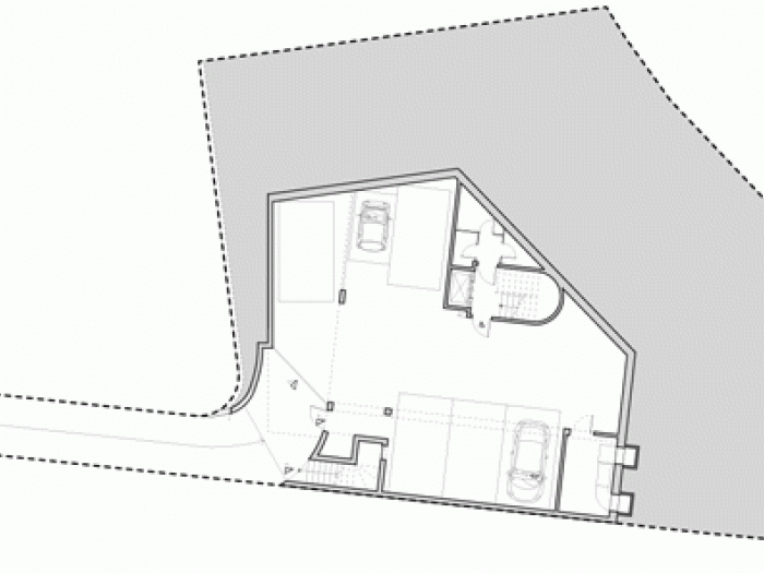
Il fondo su cui insiste il progetto si trova alle pendici del monte ‘la motta’ al margine ovest di un’area di espansione residenziale del paese di lumino, pertanto confinante su due lati con aree boschive. Il progetto è l’espressione di un linguaggio architettonico preciso e di una ricerca compositiva chiara nel definire spazi dell’abitare e relazioni con il paesaggio. L’idea è quella di mantenere un saldo legame con il territorio circostante, di relazionarsi con esso elaborando uno sviluppo di volumi lineari e apparentemente semplici, in cui le geometrie nette e il rigore compositivo si armonizzano con la natura rocciosa dell’ambiente. Così il fabbricato s’inserisce a cuneo sul pendio, come un blocco monolitico, quasi fosse un ‘masso’ staccatosi e rotolato giù dal monte soprastante, adagiandosi casualmente sul verde terreno . L’involucro è pensato come un volume compatto e spigoloso, che cambia continuamente ortogonalità: le pareti nord ed ovest sono elementi obliqui, materici, quasi privi di aperture, mentre la parete sud si apre completamente con vetrate affacciate verso la valle, le montagne e il paesaggio circostante, riflettendo il sole come lame di quarzo sulla pietra grezza.
 
Vedi gli altri progetti
 
Vai su
Invia una richiesta di lavoro a Alessandro Eletto
+ Allega file
Invia
 
Architetti vicino a te
Professionisti selezionati:
Cambia filtri
INVIA
Modifica filtri
Annulla
Chiedi un preventivo gratuito a Alessandro Eletto