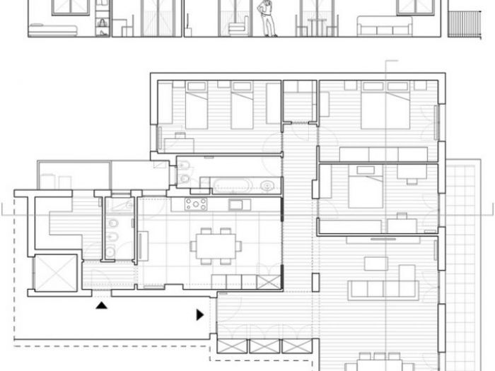
Un appartamento, in un edificio di pregio, nel centro di marsala che gioca tutto sul mobile parete che taglia trasversalmente l’appartamento, dal grande soggiorno alla zona notte con due grandi varchi sull’ingresso e verso la cucina. Colori chiari, un unica superficie piana di legno e molta cura nei dettagli e nell’illuminazione.
Questo sito o gli strumenti terzi da questo utilizzati si avvalgono di cookie necessari al funzionamento ed utili alle finalità illustrate nella cookie policy. Se vuoi saperne di più o negare il consenso a tutti o ad alcuni cookie, consulta la cookie policy. Chiudendo questo banner, scorrendo questa pagina, cliccando su un link o proseguendo la navigazione in altra maniera, acconsenti all'uso dei cookie.