Menu

Alessandro Eletto

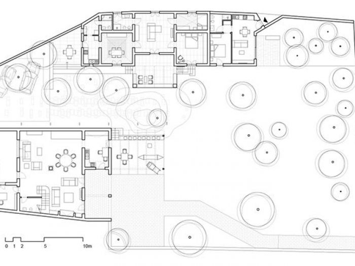
Pdm casa monofamigliare e b&b - Marsala (TP)

Numero di immagini
20
Visite ricevute
809
Like ricevuti
Una casa rurale, oggi inglobata nel tessuto cittadino, è stata acquistata da un caro amico, già proprietario della casa adiacente, per realizzarvi l’abitazione occasionale del padre, il suo studio ed un b&b, che realizzeremo nel prossimo futuro nel magazzino inutilizzato. Caratterrizzata da un susseguirsi di volumi puri di diversa dimensione, di bella proporzione, derivanti da una sapienza ‘spontanea’ del costruire. Abbiamo lavorato per recuperare, restaurandole, tutte le parti di pregio presenti, sia strutturali che di finitura, modificando il minimo necessario per rifunzionalizzare gli ambienti valorizzando e rafforzando alcune visuali verso le verande. L’ingresso alla casa è stato ripensato, prima solo punto di passaggio, ora principale spazio di condivisione esterno, coperto.
 
Vedi gli altri progetti
 
Vai su
Invia una richiesta di lavoro a Alessandro Eletto
+ Allega file
Invia
 
Architetti vicino a te
Professionisti selezionati:
Cambia filtri
INVIA
Modifica filtri
Annulla
Chiedi un preventivo gratuito a Alessandro Eletto