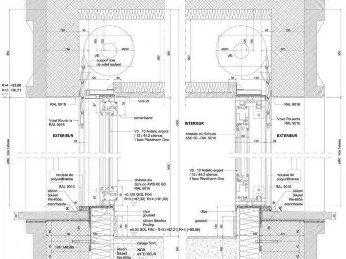
Progettazione esecutiva partizioni esterne visive per villa rignon , immobile in fase di ristrutturazione. La progettazione esecutiva richiesta dall'azienda gualini spa, specializzata nel settore, era destinata alla committenza. Sono stati sviluppati a questo scopo nodi di dettaglio considerando tutti gli elementi costruttivi dell'edificio
Questo sito o gli strumenti terzi da questo utilizzati si avvalgono di cookie necessari al funzionamento ed utili alle finalità illustrate nella cookie policy. Se vuoi saperne di più o negare il consenso a tutti o ad alcuni cookie, consulta la cookie policy. Chiudendo questo banner, scorrendo questa pagina, cliccando su un link o proseguendo la navigazione in altra maniera, acconsenti all'uso dei cookie.