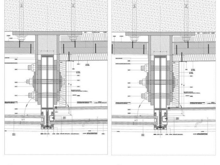
Progettazione esecutiva delle facciate edificio e1e2 situato nella nuova area riqualificata di porta nuova .il sistema di facciata montanti/ traversi è stato prodotto e realizzato a doc dall'azienda sipam. La progettazione ha previsto lo sviluppo in dettaglio dei prospetti di facciata, la definizione di tutti i materiali e finiture di facciata ed il progetto completo di tutti i nodi esecutivi per consentire la successiva operazione costruttiva.
Questo sito o gli strumenti terzi da questo utilizzati si avvalgono di cookie necessari al funzionamento ed utili alle finalità illustrate nella cookie policy. Se vuoi saperne di più o negare il consenso a tutti o ad alcuni cookie, consulta la cookie policy. Chiudendo questo banner, scorrendo questa pagina, cliccando su un link o proseguendo la navigazione in altra maniera, acconsenti all'uso dei cookie.