Centro ricerche canceropole - Cernusco Lombardone (LC)
5
690
0
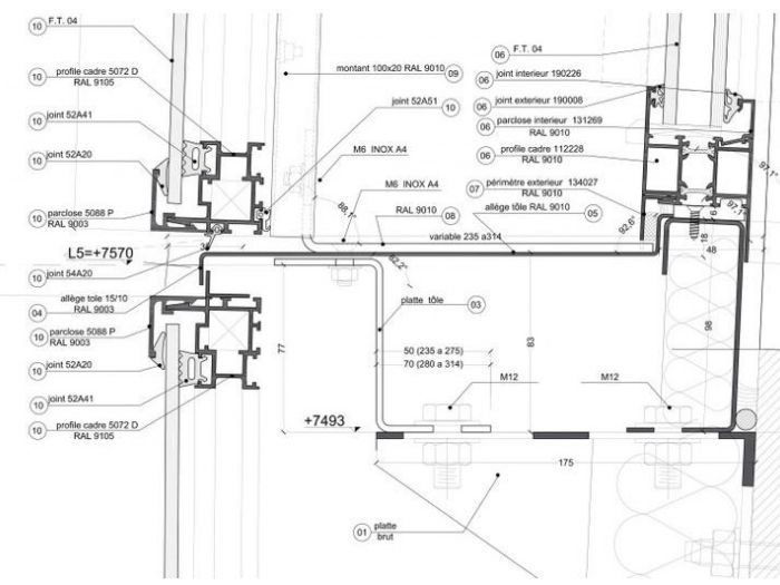
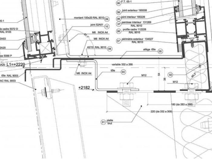
Progettazione esecutiva e costruttiva delle facciate a doppia pelle per gli edifici del centro di ricerca di canceropole a toulouse , francia. La consulenza ha messo appunto un sistema di nuova concezione attraverso una serie di prove, campionature e test prima della messa in opera ed accettazione definitiva. Profili di serie reynaers si sono studiati all'interno di una complesso reticolo a doppia pelle garantendo le prestazioni di tenuta degli ambienti confinati destinati a laboratori di ricerca.
Questo sito o gli strumenti terzi da questo utilizzati si avvalgono di cookie necessari al funzionamento ed utili alle finalità illustrate nella cookie policy. Se vuoi saperne di più o negare il consenso a tutti o ad alcuni cookie, consulta la cookie policy. Chiudendo questo banner, scorrendo questa pagina, cliccando su un link o proseguendo la navigazione in altra maniera, acconsenti all'uso dei cookie.