Menu

Ada Atelier Darchitettura

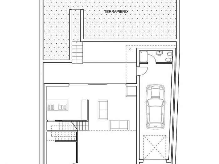
Casa flores - Erice (TP)

Numero di immagini
14
Visite ricevute
517
Like ricevuti
Progetto architettonico e direzione dei lavori: arch. Gianni ingardia Progetto strutturale: ing. Alberto sammartano
 
Vedi gli altri progetti
 
Vai su
Invia una richiesta di lavoro a Ada Atelier Darchitettura
+ Allega file
Invia
 
Architetti vicino a te
Professionisti selezionati:
Cambia filtri
INVIA
Modifica filtri
Annulla
Chiedi un preventivo gratuito a Ada Atelier Darchitettura