Geometrie naturali in giardino-giardino privato in canavese - Torino (TO)
6
561
2
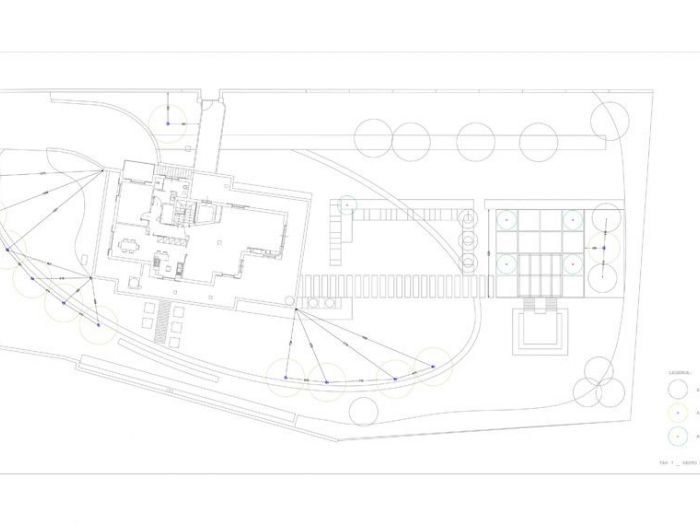
Il giardino di una casa in ristrutturazione che era stato dimenticato per troppo tempo e una coppia di clienti con l’esigenza di aver un progetto che permettesse loro di realizzare il giardino con calma, nel corso degli anni. Abbiamo così sviluppato un progetto completo, a a partire dal progetto preliminare con la struttura del giardino, passando per la scelta di alberi, arbusti ed erbacee perenni insieme al dettaglio dei materiali delle pavimentazioni e delle strutture in progetto fino agli elaborati esecutivi degli impianti tecnici quali impianto di irrigazione e illuminazione, degli schemi di piantumazione compreso il dettaglio fenologico delle singole specie botaniche selezionate. Un progetto completo in grado di accompagnare i clienti e l’impresa esecutrice, passo per passo, per rispondere fedelmente alle scelte progettuali concordate e condivise.
Questo sito o gli strumenti terzi da questo utilizzati si avvalgono di cookie necessari al funzionamento ed utili alle finalità illustrate nella cookie policy. Se vuoi saperne di più o negare il consenso a tutti o ad alcuni cookie, consulta la cookie policy. Chiudendo questo banner, scorrendo questa pagina, cliccando su un link o proseguendo la navigazione in altra maniera, acconsenti all'uso dei cookie.