Menu

Pasquale De Angelis

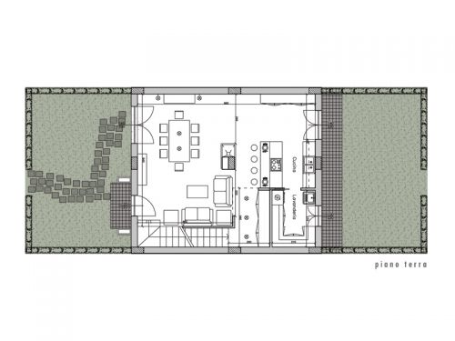
Progettazione di interni di una villa a schiera Fiumefreddo (ct) 2011 - Palermo (PA)

Numero di immagini
7
Visite ricevute
662
Like ricevuti
Archisio - Pasquale De Angelis - Progetto Progettazione di interni di una villa a schieraFiumefreddo ct 2011
Il progetto muove le mosse dalla volontà della committenza di realizzare uno spazio flessibile che si adatti alle diverse esigenze della quotidianità moderna. L'edificio si compone di tre livelli: - alla quota di ingresso la zona living-cucina; - al primo piamo le camere da letto e un piccolo studio privato; - al livello interrato il garage, la cantina e il locale tecnico. Abbandonando la tradizionale scansione formale degli ambienti monofunzionali, lo spazio viene inteso come un grande open space in cui le funzioni del vivere quotidiano, del conversare e del desinare dialogano tra loro innescando nuovi rapporti che maggiormante si confanno alla vita moderna. La grande sala al piano terra è dotata di un camino centrale che separa visivamente la zona giorno dalla cucina,caratterizzata da un ampio bancone per la prima colazione. Alle spalle dell'armadio-guardaroba trova posto la lavanderia con accesso diretto dalla cucina.

Concorso di progettazione per la realizzazione di nuovi padiglioni presso il liceo scientifico farnesina, roma 2010 - Roma (RM)

Numero di immagini
11
Visite ricevute
607
Like ricevuti
Archisio - Pasquale De Angelis - Progetto Concorso di progettazione per la realizzazione di nuovi padiglioni presso il liceo scientifico farnesina roma 2010
Il progetto per il nuovo plesso scolastico del liceo scientifico “farnesina” di roma nasce dalla volontà dell'amministrazione provinciale capitolina di rinnovare gli attuali padiglioni secondo i dettami delle più moderne tecniche costruttive in accordo con la rinnovata sensibilità della comunità dei “professionisti del progetto” verso i principi dell'architettura sostenibile vocata al risparmio energetico e al contenimento dei costi. Questi sono, appunto, gli assunti che hanno dato il via al percorso progettuale che sta alla base dell'elaborazione del presente progetto. Il nuovo edificio scolastico si colloca nell'area sud-est del lotto proposto, in sostituzione dei tre padiglioni preesistenti. Il percorso progettuale, tenendo conto delle necessità economiche dell'amministrazione, si è sviluppato Secondo un'idea unitaria da sviluppare secondo due stralci consecutivi. In accordo con le indicazioni del bando ognuno dei due lotti prevederà n.10 aule didattiche di ampiezza pari ad almeno 50 mq, due laboratori, linguistico ed informatico, di ampiezza pari ad almeno 100 mq, servizi igienici ad ogni piano divisi tra maschi e femmine, un servizio igienico ad ogni piano per i diversamente abili ed uno per il personale docente nonché

Concorso internazionale per la riconversione del palazzetto del ghiaccio in centro benessere - Ayas (AO)

Numero di immagini
10
Visite ricevute
820
Like ricevuti
Archisio - Pasquale De Angelis - Progetto Concorso internazionale per la riconversione del palazzetto del ghiaccio in centro benessere
Un’azione di svuotamento, l’integrità strutturale, un “contenitore” che diventa qualcosa di altro. Da qui siamo partiti per realizzare uno spazio funzionale di qualità. In accordo con quanto detto, l’intervento di riconversione proposto mantiene inalterata la struttura portante del palazzetto del ghiaccio – pilastri, capriate, copertura – concentrando le azioni progettuali sulla pelle del suo involucro e sull’interno. All’esterno, infatti, viene data nuova veste al volume attuale: una scatola di legno e vetro sapientemente bucata per permettere alla luce di filtrare, ora di più ora di meno, in funzione delle specifiche destinazioni d’uso degli ambienti. La nuova veste del palazzetto avvolge lo stesso completamente celandone la scansione strutturale dei pilastri che, invece, resta pienamente manifesta all’interno. La dimensione e il posizionamento delle nuove superfici vetrate sono stati progettati in ragione della quantità di illuminazione necessaria e delle funzioni delle diverse aree: maggiore luce e rapporto interno-esterno negli spazi relazionali (hall, caffetteria, piscina); privacy e luce soffusa negli ambienti destinati ai trattamenti benessere . All’alternanza legno vetro dell’esterno si contrappone all’interno la presenza della pietra a faccia vista e del legno delle capriate. All’interno di questo grande contenitore rivisitato il progetto individua tre macro aree trattate spazialmente in maniera diversa: area benessere, piscine e auditorium caffetteria. Area benessere attraverso un ingresso indipendente lungo il fronte est si accede al vero cuore della nuova riconversione che offre ai fruitori una serie di spazi organizzati per la cura, la bellezza e il benessere del corpo: la zona dei trattamenti (massaggi, sauna, bagno turco, idromassaggio, relax) e la sala fitness raccordate dagli spazi spogliatoio che ne fanno da cerniera. L’area benessere è composta da diverse cellule ognuno delle quali svolge una specifica funzione. Le cellule dei trattamenti e dei massaggi, le cellule del bagno turco, della sauna, dell’idromassaggio, le cellule dei servizi e la grande cellula della sala fitness divisa in due ambienti: la sala aerobica e la sala degli attrezzi. Le cellule di quest’area sono caratterizzate dalla presenza e dei muri in pietra viva e delle capriate. Quest’ultime sono sempre visibili in quanto l’altezza del muro in pietra arriva al di sotto delle capriate (5,20 metri di altezza). Piscine all’area benessere si contrappone l’area delle piscine un unico grande ambiente caratterizzato dalla presenza dalle grandi pareti in pietra e in vetro, dalla presenza dell’acqua e della natura circostante. Il salto di scala è massimo: agli ambienti frammentati e riservati dell’area benessere si contrappone uno spazio di ampio respiro che travalica le barriere dell’edificio attraverso il ritmo costante delle vetrate che permettono la penetrazione dell’ambiente naturale circostante e di stare in continuo contatto visivo con questo. Auditorium e caffetteria la terza area è quella che comprende l’auditorium, con i suoi servizi, e la caffetteria con un ampia zona prospiciente riscaldata da un suggestivo camino in pietra e acciaio. L’area dell’auditorium e della caffetteria è un grande ambiente in cui predomina il grande manto in legno che contiene l’auditorium, il bar e i servizi. Questo manto contiene lo spazio delle relazioni, della comunicazione e dello scambio. Tutto intorno è lo spazio della conversazione, dello stare bene e del relax, un grande salotto accogliente. Tra il dentro e il fuori non c’è soluzione di continuità e la pavimentazione interna si protrae verso fuori attraverso l’uso dello stesso materiale, il legno. Abbiamo realizzato due terrazze: all’ingresso e un’ampia terrazza sul torrente evançon. Le terrazze in legno sono parte integrante del centro benessere in quanto diventano una panoramica zona relax e solarium da godere in ogni periodo dell’anno. Le pavimentazioni in legno utilizzate sono resistenti per natura all’attacco di muffe, batteri e intemperie, principali cause di deterioramento di questo pregiato materiali. Questi legni vengono lavorati in doghe, non temono l’acqua e non necessitano di trattamenti particolari. Anche l’involucro esterno è realizzato in doghe in legno disposte verticalmente. I prospetti sono scanditi dal ritmo delle vetrate e dal legno. Il legno del manto contenente l’auditorium è tagliato a fil di sega e mordentato. Si pensa di utilizzare come essenza il ciliegio che, pur essendo un legno costoso, risulta un materiale ottimo per l’acustica. Le capriate sono trattate con la tecnica di decapatura che ne modifica il colore e la percezione materica. I muri sono realizzati in blocchi di pietra faccia a vista e i tramezzi sono realizzati in blocchi termici di argilla espansa intonacati.

Concorso internazionale "parco della cultura a monreale" - Monreale (PA)

Numero di immagini
9
Visite ricevute
592
Like ricevuti
Archisio - Pasquale De Angelis - Progetto Concorso internazionale parco della cultura a monreale
La struttura che è stata progettata per il nuovo parco della cultura della straordinaria emergenza urbana di monreale ha come intento il voler rispondere in mariera ineludibile ai dettami del concorso, e allo stesso tempo di voler essere di supporto alle esigenze funzionali che possono migliorare la fruibilità viaria e le esigenze culturali che sono insite e dovute al centro in questione. E’ necessario precisare che l'approccio progettuale è stato teso a ridurre al massimo il protagonismo tipico del creare per amplificare ancor di più il valore straordinario del duomo. La mimesi che è stata intrapresa come punto di partenza del nostro “fare” ha fatto si che l’intervento possa essere protagonista senza invasione in termini volumetrici, un’architettura orizzontale frantumata non massiva ne massiccia in cui sono individuabili chiaramente i vari spazi che dipanandosi al di sotto di una coperta si concatenano raccontando un coerente ragionamento e sviluppo colto. Un boomerang che si plasma all’orografia del territorio la cui cerniera risulta essere il fulcro nonché il fuoco nonché il cuore dell’intero progetto che viene individuato nella tipologia dell’auditorium. Un cuore che pulsa di forma autonoma distante dalle spigolosità dell’architettura arabo-normanna e dalla voluta semplificazione sia nei materiali (rame) che nelle forme degli elementi funzionali. Un oggetto curvilineo fuoriuscente volutamente dalla copertura per avvalorare ancor di più la tipologia aggregativa che in essa è contenuta, una sorta di agorà, luogo di pensiero, di memoria, di discussione, di confronto; luogo in cui il privato possa esprimersi in termini pubblici è l’elemento che indica la rottura della linea dove essa si spezza assimilando la figura ad una linea rotta, in aggiunta l’auditorium risulta anche unione verticale in quanto il suo volume occupa due piani della struttura, contenendo in sé 468 posti ed a esso sono collegati spazi che rendono funzionale il luogo (sala conferenziere, depositi, bagni, hall, etc..). A destra ed a sinistra altri luoghi di aggregazione si aggiungono ma con qualità volutamente e formalmente più lineari, assimilabili a figurazioni geometriche razionali, lineari. Quindi una sorta di contraddizione voluta tra la forma irrazionale curvilinea e la forma della razionalità rettilinea. Un oggetto quello progettato che come già detto vuole essere non solo simbolico, ma anche rispondere alle esigenze funzionali del buon fare e del buon vivere. E’ infatti indispensabile che un’ottima struttura urbana in cui tutto è stato progettato e realizzato a dimensione d’uomo si possa fare a meno di architetture e infrastrutture che facilitino la vita dell’uomo giusto. La struttura è stata pensata nella sua copertura come un prolungamento del giardino dell’arcivescovado al di sotto del quale vengono realizzati tre piani. Il primo è strutturato per contenere la biblioteca e mediateca, le sale laboratorio, il museo, l’auditorium, il ristorante e gli uffici. Gli altri due adibiti a parcheggi coperti, il più basso ad uso esclusivo delle auto (n° 127 auto) l’altro per pullman e motociclette (n° 8 pullman e n° 23 motociclette).nello specifico leggendo la struttura da sinistra a destra guardando il prospetto abbiamo 290 mq adibiti a biblioteca, 297 mq per laboratori, 332 mq per il museo, 479 mq l’auditorium, 338 mq il ristorante caffetteria, 124 mq per gli uffici, nella struttura connettiva che risulta essere di mq 1622 sono anche inseriti degli elementi espositivi per un totale di 150 mq. Una sorta quindi di struttura complessa in cui le parti commerciali si mescolano con molta armonia alle parti culturali. La nuova architettura vuole dare rinnovata valenza al complesso monumentale inserendosi nella fascia del costone sottostante nel pieno rispetto della valenza paesaggistica del contesto. Principio fondante è quello di creare un sistema di giardini a vari livelli che si integrano con la copertura del nuovo progetto. La nuova architettura dà risposta funzionale alle diverse esigenze individuate dal bando. In primo luogo il progetto si configura come porta di accesso al complesso cittadino dove confluiscono i traffici veicolari, e pedonali oggi garantiti dalla storica via marmorea. Il tema dei parcheggi viene affrontato assorbendo l’attuale parcheggio comunale inserendolo all’interno del progetto riprogettandolo. Il traffico veicolare, proveniente dalla circonvallazione di monreale e dalla via ignazio florio, vengono incanalati in un percorso e convogliati all’interno dei nuovi parcheggi collegati attraverso percorsi di risalita pedonale al livello dei giardini. I flussi turistici trovano all’interno del nuovo edificio il momento iniziale del percorso della cultura monrealese. Spazi espositivi e auditorium danno vita a una narrazione culturale che troverà, attraverso un percorso di risalita meccanizzato, il suo apice nel complesso del duomo e in quello di guglielmo ii.
Vai su
Invia una richiesta di lavoro a Pasquale De Angelis
+ Allega file
Invia
 
Disegnatori 3D Rendering vicino a te
Professionisti selezionati:
Cambia filtri
INVIA
Modifica filtri
Annulla
Chiedi un preventivo gratuito a Pasquale De Angelis