Menu

Cofra Architettura Design Innovazione

Modifica del piano terra per realizzare delle nuove aule didattiche e laboratori - Padova (PD)

Numero di immagini
2
Visite ricevute
576
Like ricevuti
Archisio - Cofra Architettura Design Innovazione - Progetto Modifica del piano terra per realizzare delle nuove aule didattiche e laboratori
Modifica del piano terra per realizzare delle nuove aule didattiche e laboratori. La nuova struttura doveva non modificare l'impostazione originale di un edificio poggiante su pilastri al piano terra

Progetto abitazione bifamiliare - Padova (PD)

Numero di immagini
33
Visite ricevute
871
Like ricevuti
Archisio - Cofra Architettura Design Innovazione - Progetto Progetto abitazione bifamiliare
Costruzione di abitazione bifamiliare con struttura ed impianti a risparmio energetico. Progettata con illuminazione a led, domotica, pannelli solari, pareti a secco e struttura in metallo, per risparmio energetico, resistenza e velocità di esecuzione. Ha ottenuto la classe a nella classificazione per il risparmio energetico.

Ampliamento della zona giorno di una abitazione - Pianiga (VE)

Numero di immagini
4
Visite ricevute
614
Like ricevuti
Archisio - Cofra Architettura Design Innovazione - Progetto Ampliamento della zona giorno di una abitazione
Ampliamento della zona giorno di una abitazione mediante la realizzazione di una serra bioclimatica.

Studio costruzione abitazione - Valdagno (VI)

Numero di immagini
4
Visite ricevute
693
Like ricevuti
Archisio - Cofra Architettura Design Innovazione - Progetto Studio costruzione abitazione
Progettazione di abitazione bifamiliare.

Ristrutturazione di una villa - Vigodarzere (PD)

Numero di immagini
3
Visite ricevute
623
Like ricevuti
Archisio - Cofra Architettura Design Innovazione - Progetto Ristrutturazione di una villa
Ristrutturazione di una villa con riqualificazione e ridistribuzione dei volumi dell'edificio. Riprogettazione degli spazi esterni con realizzazione di modelli 3d e inserimento nel contesto urbano. Progettazione per l'inserimento di impianti a risparmio energetico.

Rendering di una ristrutturazione - Padova (PD)

Numero di immagini
2
Visite ricevute
608
Like ricevuti
Archisio - Cofra Architettura Design Innovazione - Progetto Rendering di una ristrutturazione
Ristrutturazione ed ampliamento di un edificio industriale, organizzato su due piani

Ristrutturazione con ampliamento e arredamento di villa - Verona (VR)

Numero di immagini
48
Visite ricevute
1.4K
Like ricevuti
Archisio - Cofra Architettura Design Innovazione - Progetto Ristrutturazione con ampliamento e arredamento di villa
Ristrutturazione con ampliamento e arredamento di villa. Impianti domotici, videocontrollo, automazioni, pannelli solari e pareti a secco con struttura antisismica. La casa può essere controllata a distanza in tutte le sue funzioni. Dispone di impianto per il riciclo delle acque, di piscina e mini piscina jacuzzi, riscaldate da impianto solare. Ha ottenuto la classe a per il risparmio energetico.

Realizzazione di un edificio bifamiliare - Camposampiero (PD)

Numero di immagini
4
Visite ricevute
651
Like ricevuti
Archisio - Cofra Architettura Design Innovazione - Progetto Realizzazione di un edificio bifamiliare
Realizzazione di un edificio bifamiliare, con ampio giardino. Gli spazi interni sono articolati su tre livelli, raccordati con il giardino.

Rinnovamento casa - Camposampiero (PD)

Numero di immagini
14
Visite ricevute
644
Like ricevuti
Archisio - Cofra Architettura Design Innovazione - Progetto Rinnovamento casa
Efficientamento energetico di porzione di bifamiliare realizzato mediante isolamento termico di tetto e pareti esterne con sostituzione di serramenti esterni. Ampliamento con la trasformazione di una struttura ad arredo giardino in porticato e realizzazione di un garage, con modifiche della recinzione

Costruzione di una abitazione in campagna - Padova (PD)

Numero di immagini
4
Visite ricevute
564
Like ricevuti
Archisio - Cofra Architettura Design Innovazione - Progetto Costruzione di una abitazione in campagna
Costruzione di una abitazione inserita nella campagna, con caratteristiche di casa veneta, organizzata su due piani e portici. La struttura è stata realizzata in mattoni legati con calce, quindi parete traspirante e tetto in legno.

Casa ecobiocompatibile - Padova (PD)

Numero di immagini
9
Visite ricevute
470
Like ricevuti
Archisio - Cofra Architettura Design Innovazione - Progetto Casa ecobiocompatibile
Casa ecobiocompatibile, realizzata in muratura di mattoni e calce spenta con intonaco di calce traspirante. I solai e la copertura in legno. Il solaio del primo piano è stato appesa con tiranti alla struttura del tetto. Le grandi vetrate ad arco permettono al sole di riscaldare il pavimento dove al suo interno scorre una serpentina in cui tramite l'acqua bilancia la temperatura nei vari locali della casa. Il riscaldamento è prodotto da una stufa a legna con collegamento idraulico integrata con p

Restauro - Padova (PD)

Numero di immagini
3
Visite ricevute
426
Like ricevuti
Archisio - Cofra Architettura Design Innovazione - Progetto Restauro
Restauro di tipica residenza inglese ubicata in campagna. Sono stati recuperati gli spazi originali e le finiture caratteristiche di questi edifici, integrando gli impianti, ed ampliando le dipendenze.

Fiera vicenza - Padova (PD)

Numero di immagini
14
Visite ricevute
644
Like ricevuti
Archisio - Cofra Architettura Design Innovazione - Progetto Fiera vicenza
Progettazione ed allestimento di stand presso la fiera di vicenza in occasione dell'esposizione energy days energie rinnovabili / risparmio energetico / bioedilizia svoltasi dal 15 al 18 marzo 2012

Manutenzione - Padova (PD)

Numero di immagini
13
Visite ricevute
461
Like ricevuti
Archisio - Cofra Architettura Design Innovazione - Progetto Manutenzione
Manutenzione di facciate, terrazze, parapetti e tetto di edificio

Ristrutturazione casa - Padova (PD)

Numero di immagini
29
Visite ricevute
486
Like ricevuti
Archisio - Cofra Architettura Design Innovazione - Progetto Ristrutturazione casa
Ristrutturazione di un appartamento in centro storico di padova, per realizzare un monolocale di circa mq.60 con ripostiglio esterno e due garage pertinenze di abitazioni. Particolare cura è stata adottata per risanare le murature, conservare la travatura originale, sostituire tutti gli impianti e rinforzare la struttura portante. Parzialmente arredato (cucina,bagno) con impianto di illuminazione a led, climatizzazione, riscaldamento autonomo, idromassaggio e cromoterapia.

Ristrutturazione di un locale commerciale - Dolo (VE)

Numero di immagini
25
Visite ricevute
509
Like ricevuti
Archisio - Cofra Architettura Design Innovazione - Progetto Ristrutturazione di un locale commerciale
Ristrutturazione di un locale commerciale per l'allestimento di un bar ristorante. Caratteristica principale: allestimento essenziale con particolari finiture di effetto. Inoltre cucina in vista, spazi esterni, funzionalità. Il punto focale è un video-wall interattivo composto da quattro monitor collegati sia ad eventi televisivi che ai social network usati dai clienti, con applicazione specifica sviluppata da mentalab

Realizzazione del corpo aule didattiche e completamento edificio principale - Padova (PD)

Numero di immagini
7
Visite ricevute
487
Like ricevuti
Archisio - Cofra Architettura Design Innovazione - Progetto Realizzazione del corpo aule didattiche e completamento edificio principale
Realizzazione del corpo aule didattiche e completamento edificio principale. L'edificio è stato realizzato in calcestruzzo bianco, addittivato in impasto con ossidi colorati.

Progetto esecutivo dell'ampliamento dell'ospedale - Piove di Sacco (PD)

Numero di immagini
3
Visite ricevute
451
Like ricevuti
Archisio - Cofra Architettura Design Innovazione - Progetto Progetto esecutivo dellampliamento dellospedale
Progetto esecutivo dell'ampliamento dell'ospedale con ricomposizione delle facciate in pannelli e serramenti prefabbricati a fasce. Il progetto è stato realizzato partendo da una struttura già esistente e interessando la distribuzione degli spazi interni e le facciate.

Realizzazione dell'unità coronarica - Padova (PD)

Numero di immagini
7
Visite ricevute
456
Like ricevuti
Archisio - Cofra Architettura Design Innovazione - Progetto Realizzazione dellunit coronarica
Realizzazione dell'unità coronarica utilizzando il sottoportico del policlinico, in collegamento con la clinica cardiochirurgica

Restauro del palazzo principale - Padova (PD)

Numero di immagini
3
Visite ricevute
439
Like ricevuti
Archisio - Cofra Architettura Design Innovazione - Progetto Restauro del palazzo principale
Restauro dell palazzo principale con realizzazione del corpo aule per studenti. All'interno è stata realizzata una scala in graniglia di marmo sospesa su tiranti in ferro ancorati al solaio di copertura.

Progettazione di edifici - Sandrigo (VI)

Numero di immagini
8
Visite ricevute
468
Like ricevuti
Archisio - Cofra Architettura Design Innovazione - Progetto Progettazione di edifici
Edificio con uffici e laboratori di ricerca chimica

Suddivisione con ristrutturazione di appartamento in due unità immobiliari collegate - Padova (PD)

Numero di immagini
33
Visite ricevute
1.2K
Like ricevuti
Archisio - Cofra Architettura Design Innovazione - Progetto Suddivisione con ristrutturazione di appartamento in due unit immobiliari collegate
Suddivisione con ristrutturazione di appartamento in due unità immobiliari collegate. Recupero delle caratteristiche originali con restauro del fregio, delle porte, nuovi serramenti a risparmio energetico, recupero dei cassonetti, nuovo pavimento corrispondente all'originale, impianti domotici, risparmio energetico, isolamento acustico, riscaldamento a pavimento, climatizzazione. Restauro e recupero mobili originali, integrati da nuovi arredamenti contemporanei

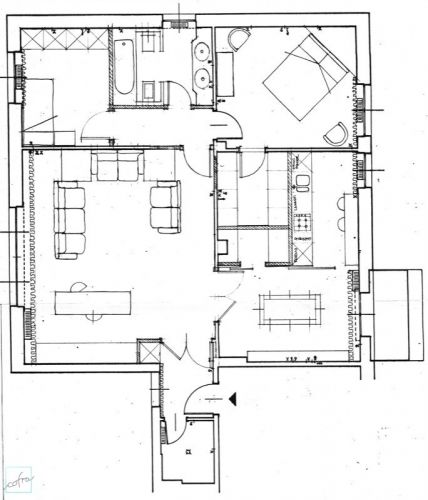
Progettazione e costruzione di casa trifamiliare - Padova (PD)

Numero di immagini
29
Visite ricevute
694
Like ricevuti
Archisio - Cofra Architettura Design Innovazione - Progetto Progettazione e costruzione di casa trifamiliare
Progettazione e costruzione di casa trifamiliare, organizzata su piano interrato, piano terra,piano primo e piano secondo, collegati da una scala centrale ed ascensore. Sono stati realizzati tre unità immobiliari, con una ampia area comune di ritrovo e wellnes. Isolamento termico ed acustico, impianti a risparmio energetico.

Ristrutturazione ambienti - Padova (PD)

Numero di immagini
71
Visite ricevute
971
Like ricevuti
Archisio - Cofra Architettura Design Innovazione - Progetto Ristrutturazione ambienti
Ristrutturazione e arredamento di un mini appartamento. Il progetto prevede di soddisfare diverse esigenze funzionali, mediante il movimento di alcuni elementi d'arredo. La zona servizi è stata concentrata in un unico blocco, lasciando libera l'area trasformabile. Un video del funzionamento del mobile è qui.

Tesi di laurea per la realizzazione di un quartiere residenziale - Padova (PD)

Numero di immagini
17
Visite ricevute
457
Like ricevuti
Archisio - Cofra Architettura Design Innovazione - Progetto Tesi di laurea per la realizzazione di un quartiere residenziale
Tesi di laurea per la realizzazione di un quartiere residenziale. Nell'interrato traffico veicolare e parcheggi; al piano terra, aree verdi, percorsi pedonali ed attività sociali e commerciali. Struttura reticolare spaziale in acciaio, percorsi orizzontali e verticali, sulla quale si possono agganciare unità abitative in vetroresina, realizzate secondo le necessità e la forma richiesta dai diversi abitanti. La trasparenza e la libertà di realizzazione permette di mantenere un'area verde estesa.

Riorganizzazione degli spazi interni ed arredamento di attico vista mare - Amantea (CS)

Numero di immagini
6
Visite ricevute
487
Like ricevuti
Archisio - Cofra Architettura Design Innovazione - Progetto Riorganizzazione degli spazi interni ed arredamento di attico vista mare
Riorganizzazione degli spazi interni ed arredamento di attico vista mare, con riqualificazione delle terrazze, pavimentate in legno, soggiorno, barbecue e solarium con mini piscina jacuzzi, per poter godere appieno delle caratteristiche climatiche della zona e della particolare vista panoramica.

Studio per sistemazione spazi interni - Padova (PD)

Numero di immagini
6
Visite ricevute
582
Like ricevuti
Archisio - Cofra Architettura Design Innovazione - Progetto Studio per sistemazione spazi interni
Studio per sistemazione spazi interni di un edificio su più livelli con l'inserimento di un ascensore.

Rendering di possibile utilizzo - Padova (PD)

Numero di immagini
9
Visite ricevute
483
Like ricevuti
Archisio - Cofra Architettura Design Innovazione - Progetto Rendering di possibile utilizzo
Cambio di destinazione d'uso di magazzino a loft con terrazza.

Progettazione e realizzazione di scala - Padova (PD)

Numero di immagini
4
Visite ricevute
470
Like ricevuti
Archisio - Cofra Architettura Design Innovazione - Progetto Progettazione e realizzazione di scala
Progettazione e realizzazione di scala in acciaio, vetro e legno con sistemazione dell'ingresso con luci a led e opere d'arte.

Restauro - Padova (PD)

Numero di immagini
8
Visite ricevute
554
Like ricevuti
Archisio - Cofra Architettura Design Innovazione - Progetto Restauro
Restauro uffico

Rifacimento dell'ingresso esterno e apertura di un garage - Padova (PD)

Numero di immagini
5
Visite ricevute
458
Like ricevuti
Archisio - Cofra Architettura Design Innovazione - Progetto Rifacimento dellingresso esterno e apertura di un garage
Rifacimento dell'ingresso esterno e apertura di un garage. E' stato demolito l'ingresso, aggiunto in epoca diversa dall'edificazione, per ripristinarne uno conforme allo stile originale della casa.

Rendering appartamento - Padova (PD)

Numero di immagini
9
Visite ricevute
655
Like ricevuti
Archisio - Cofra Architettura Design Innovazione - Progetto Rendering appartamento
Sistemazione di un miniappartamento con ampia terrazza, compreso arredamento. I lavori prevedono il rifacimento completo degli impianti, la ridistribuzione interna degli spazi, l'apertura di ampie vetrate, la realizzazione di un struttura a pergolato all'esterno e la sistemazione a verde della terrazza.

Cromoterapia in sauna - Padova (PD)

Numero di immagini
7
Visite ricevute
463
Like ricevuti
Archisio - Cofra Architettura Design Innovazione - Progetto Cromoterapia in sauna
Realizzazione di cromoterapia all'interno di una sauna esistente tramite l'inserimento di luci a led a fibre ottiche.

Progettazione mobile - Padova (PD)

Numero di immagini
4
Visite ricevute
430
Like ricevuti
Archisio - Cofra Architettura Design Innovazione - Progetto Progettazione mobile
Mobile per appoggio televisore, contenente varie apparecchiature multimediali accessorie al monitor, casse acustiche, completo di illuminazione. Il frontale è previsto in vetro speciale colorato, per permettere il passaggio dei segnali dei telecomandi

Rendering casa - Padova (PD)

Numero di immagini
6
Visite ricevute
559
Like ricevuti
Archisio - Cofra Architettura Design Innovazione - Progetto Rendering casa
Ristrutturazione con ampliamento in soprelevazione di una casa a due piani, con modiche strutturali, prospettiche e volumetriche. L'appartamento al primo piano viene espanso al piano superiore con la realizzazione di terrazze sui due lati e con l'allestimento di una terrazza solarium al terzo piano. E' previsto un ascensore che colleghi i vari piani

Studio monolocale storico - Padova (PD)

Numero di immagini
5
Visite ricevute
430
Like ricevuti
Archisio - Cofra Architettura Design Innovazione - Progetto Studio monolocale storico
Sistemazione ed arredamento di monolocale in centro storico

Trasformazione di una camera con soffitta - Padova (PD)

Numero di immagini
14
Visite ricevute
500
Like ricevuti
Archisio - Cofra Architettura Design Innovazione - Progetto Trasformazione di una camera con soffitta
Trasformazione di una camera con soffitta in abitazione con terrazza, recuperando il sottotetto.

Ristrutturazione ed arredamento di mini appartamento - Valdagno (VI)

Numero di immagini
21
Visite ricevute
1.0K
Like ricevuti
Archisio - Cofra Architettura Design Innovazione - Progetto Ristrutturazione ed arredamento di mini appartamento
Ristrutturazione ed arredamento di mini appartamento. Si sono realizzati gli spazi per cucina pranzo soggiorno, lavanderia, bagno, antibagno e camera da letto matrimoniale in poco più di 30mq. L'appartamento è stato adeguato alle norme sul risparmio energetico, tramite la sostituzione di serramenti, isolamenti termici ed acustici ed impianto di riscaldamento a pavimento a piastra radiante. L'impianto elettrico é stato eseguito con tecnologia domotica.

Redistribuzione degli spazi interni di un monolocale su due livelli - Padova (PD)

Numero di immagini
22
Visite ricevute
1.1K
Like ricevuti
Archisio - Cofra Architettura Design Innovazione - Progetto Redistribuzione degli spazi interni di un monolocale su due livelli
Redistribuzione degli spazi interni di un monolocale su due livelli, con realizzazione di un arredamento particolare su misura.

Sistemazione interna ed arredamento di un appartamento - Montebello della Battaglia (PV)

Numero di immagini
6
Visite ricevute
433
Like ricevuti
Archisio - Cofra Architettura Design Innovazione - Progetto Sistemazione interna ed arredamento di un appartamento
Sistemazione interna ed arredamento di un appartamento, caratterizzato da una zona giorno aperta, attorno ad un camino centrale.

Ristrutturazioni - Bassano del Grappa (VI)

Numero di immagini
11
Visite ricevute
467
Like ricevuti
Archisio - Cofra Architettura Design Innovazione - Progetto Ristrutturazioni
Ristrutturazione di un appartamento, organizzato su spazi aperti interconnessi, con possibilità di suddivisione con pareti mobili.

Recupero di occhio di portico - Padova (PD)

Numero di immagini
19
Visite ricevute
585
Like ricevuti
Archisio - Cofra Architettura Design Innovazione - Progetto Recupero di occhio di portico
Recupero di occhio di portico con l'inserimento di un ascensore per collegare i vari livelli.

Restauro e ristrutturazione di edificio di epoca medioevale - Padova (PD)

Numero di immagini
11
Visite ricevute
445
Like ricevuti
Archisio - Cofra Architettura Design Innovazione - Progetto Restauro e ristrutturazione di edificio di epoca medioevale
Restauro e ristrutturazione di edificio di epoca medioevale strutturato su più livelli attorno ad una scala centrale, con spazi interni aperti. Le parti originali sono state restaurate e conservate, come le strutture in legno e le pareti portanti in mattoni a vista. Le parti nuove sono state inserite come elementi contemporanei. Arredamento su misura e riscaldamento a pavimento sperimentale.

Progettazione letto per portatori di handicap - Padova (PD)

Numero di immagini
15
Visite ricevute
436
Like ricevuti
Archisio - Cofra Architettura Design Innovazione - Progetto Progettazione letto per portatori di handicap
Progettazione e realizzazione di letto speciale per portatori di handicap gonfiabile e trasportabile.

Suddivisione di appartamento esistente - Padova (PD)

Numero di immagini
21
Visite ricevute
515
Like ricevuti
Archisio - Cofra Architettura Design Innovazione - Progetto Suddivisione di appartamento esistente
Suddivisione di appartamento esistente in due unità abitative con ristrutturazione completa. Finiture di particolare pregio, con impianti domotici ed a risparmio energetico, isolamento acustico e termico

Suddivisione di ampio ufficio - Padova (PD)

Numero di immagini
20
Visite ricevute
886
Like ricevuti
Archisio - Cofra Architettura Design Innovazione - Progetto Suddivisione di ampio ufficio
Suddivisione di ampio ufficio con cambio di destinazione d'uso da commerciale a residenziale. Ridistribuzione degli spazi interni per la realizzazione di tre appartamenti, con ampia terrazza con pavimentazione galleggiante in legno. Rifacimento integrale di impianti con caratteristiche di risparmio energetico e gestione domotica.

Suddivisione di ampio ufficio - Padova (PD)

Numero di immagini
10
Visite ricevute
493
Like ricevuti
Archisio - Cofra Architettura Design Innovazione - Progetto Suddivisione di ampio ufficio
Suddivisione di ampio ufficio con cambio di destinazione d'uso da commerciale a residenziale. Redistribuzione degli spazi interni e impianti tecnologici per il risparmio energetico. Impianto elettrico ed allarme domotici

Ristrutturazione e riorganizzazione degli spazi interni - Padova (PD)

Numero di immagini
18
Visite ricevute
454
Like ricevuti
Archisio - Cofra Architettura Design Innovazione - Progetto Ristrutturazione e riorganizzazione degli spazi interni
Ristrutturazione e riorganizzazione degli spazi interni.rifacimento completo degli impianti, dei serremanti e degli isolamentii per il risparmio energetico e confort acustico. Impianti elettrici ed allarme con sistema domotico.

Progettazione scrivania - Padova (PD)

Numero di immagini
4
Visite ricevute
456
Like ricevuti
Archisio - Cofra Architettura Design Innovazione - Progetto Progettazione scrivania
Scrivania e mobile di appoggio laterale, con struttura in alluminio preverniciato e supporto in vetro. Il piano è progettato per una finitura opaca personalizzata o trasparente per l'inserimento di un monitor ed un computer all'interno. Nella parte verticale sono inseriti i cavi di cablaggio.

Ristrutturazione di monolocale - Padova (PD)

Numero di immagini
11
Visite ricevute
432
Like ricevuti
Archisio - Cofra Architettura Design Innovazione - Progetto Ristrutturazione di monolocale
Ristrutturazione di monolocale con arredo su misura. Si è riusciti a realizzare un soggiorno con divano-letto componibile in matrimoniale, singolo o divano con poggiapiedi, cucina, tavolo da pranzo, bagno, antibagno e vani per ripostiglio, in circa 20 mq.

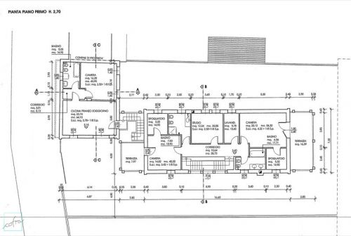
Ristrutturazione ed ampliamento di una porzione di bifamiliare - Verona (VR)

Numero di immagini
49
Visite ricevute
1.2K
Like ricevuti
Archisio - Cofra Architettura Design Innovazione - Progetto Ristrutturazione ed ampliamento di una porzione di bifamiliare
Ristrutturazione ed ampliamento di una porzione di bifamiliare con la realizzazione di un piano interrato sottostante al giardino. Realizzazione impianti ed isolamenti per il risparmio energetico: pannelli solari, riciclo acque piovane. Impianti elettrici domotici, impianto di allarme con videocontrollo, gestibili a distanza.

Realizzazione letto per disabile - Padova (PD)

Numero di immagini
48
Visite ricevute
1.3K
Like ricevuti
Archisio - Cofra Architettura Design Innovazione - Progetto Realizzazione letto per disabile
Mobile letto per disabile con preciso intento di non farlo apparire come un lettino da ospedale. Videosorveglianza e automazioni sono nascoste in un mobile che richiami un simpatico letto per bambine, permettendo funzionalità ed eliminando l'apparenza "triste" e desolante di un lettino tecnico. Materiali lavabili e anti trauma, facilità di smontaggio e trasporto, trasformazione da letto a fasciatoio con un solo tasto.

Ampliamento abitazione - Santa Giustina (BL)

Numero di immagini
11
Visite ricevute
448
Like ricevuti
Archisio - Cofra Architettura Design Innovazione - Progetto Ampliamento abitazione
Ampliamento di una abitazione inserita nella campagna, con caratteristiche di casa veneta, organizzata su due piani e portici, realizzando un corpo collegato ed una dipendenza per locali accessori.

Ampliamento abitazione esistente - Noventa Padovana (PD)

Numero di immagini
5
Visite ricevute
440
Like ricevuti
Archisio - Cofra Architettura Design Innovazione - Progetto Ampliamento abitazione esistente
Ampliamento della casa esistente con costruzione di camera con bagno ricavata dallo spostamento di una falda del tetto e rifacimento della scala interna. Questa sistemazione è stata realizzata senza modificare le caratteristiche esterne della casa, raccordandosi con l'esistente.

Costruzione di abitazione - Noventa Padovana (PD)

Numero di immagini
14
Visite ricevute
525
Like ricevuti
Archisio - Cofra Architettura Design Innovazione - Progetto Costruzione di abitazione
Costruzione di trifamiliare costituita da tre unità indipendenti con giardino esclusivo e piano interrato con garage e servizi.

Rinnovamento degli spazi abitativi - Padova (PD)

Numero di immagini
18
Visite ricevute
513
Like ricevuti
Archisio - Cofra Architettura Design Innovazione - Progetto Rinnovamento degli spazi abitativi
Modifiche re-distributive interne per la creazione di una unità abitativa da locali ad uso laboratorio.

Ristrutturazione bagno - Padova (PD)

Numero di immagini
4
Visite ricevute
418
Like ricevuti
Archisio - Cofra Architettura Design Innovazione - Progetto Ristrutturazione bagno
Rifacimento di bagni e cucina compreso arredamento.

Servizi interporto - Padova (PD)

Numero di immagini
23
Visite ricevute
1.2K
Like ricevuti
Archisio - Cofra Architettura Design Innovazione - Progetto Servizi interporto
Servizi interporto: centro polifunzionale di servizi all'autotrasportatore. Bar, ristorante, albergo, sale riunioni, sala relax, distributore di benzina, parcheggio, servizi igienici e lavanderia.

Prototipo di autoroulotte - Padova (PD)

Numero di immagini
13
Visite ricevute
421
Like ricevuti
Archisio - Cofra Architettura Design Innovazione - Progetto Prototipo di autoroulotte
Prototipo di autoroulotte con vista panoramica cinque posti letto; completo di ogni confort (impianto a benzia e a gpl, riscaldamento, acqua calda, bagno completo con doccia, ecc.). Struttura in vetroresina coibentata, cristalli panoramici.

Libreria - Padova (PD)

Numero di immagini
2
Visite ricevute
393
Like ricevuti
Archisio - Cofra Architettura Design Innovazione - Progetto Libreria
Modello di libreria modulare con ripiani in vetro satinato e montanti in rame e ferro zigrinato.

Realizzazione di appartamento - Padova (PD)

Numero di immagini
17
Visite ricevute
529
Like ricevuti
Archisio - Cofra Architettura Design Innovazione - Progetto Realizzazione di appartamento
Realizzazione di appartamento con affaccio su terrazza in centro storico.

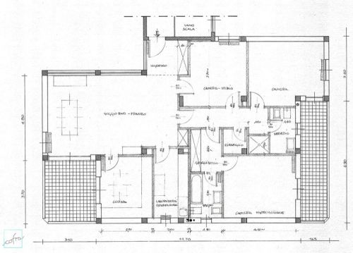
Ristrutturazione di porzione di bifamiliare - Albignasego (PD)

Numero di immagini
35
Visite ricevute
1.1K
Like ricevuti
Archisio - Cofra Architettura Design Innovazione - Progetto Ristrutturazione di porzione di bifamiliare
Ristrutturazione di porzione di bifamiliare con ridistribuzione degli spazi. Isolamenti, impianti tecnologici per il risparmio energetico. Domotiva e videosorveglianza. Lo spazio interno si sviluppa su tre piani con al centro un ascensore ed una scala illuminati dal tetto. Gli spazi al piano terra prospettanti verso il giardino, sono caratterizzati da ampi pannelli porte in vetro che possono schermare e suddividere gli spazi.

Ristrutturazione - Padova (PD)

Numero di immagini
14
Visite ricevute
500
Like ricevuti
Archisio - Cofra Architettura Design Innovazione - Progetto Ristrutturazione
Ristrutturazione di un appartamento trasformandolo in un ufficio. Arredamento su misura e su disegno specifico.

Ristrutturazione centro storico - Padova (PD)

Numero di immagini
22
Visite ricevute
1.1K
Like ricevuti
Archisio - Cofra Architettura Design Innovazione - Progetto Ristrutturazione centro storico
Suddivisione di appartamento in due unità con ristrutturazione radicale con impianti di ultima generazione

Ridistrubzione spazi per isolamento acustico - Padova (PD)

Numero di immagini
6
Visite ricevute
466
Like ricevuti
Archisio - Cofra Architettura Design Innovazione - Progetto Ridistrubzione spazi per isolamento acustico
Modifica redistributiva interna con riorganizzazione degli spazi. Con particolare attenzione all'isolamento acustico.

Ristrutturazione - Padova (PD)

Numero di immagini
39
Visite ricevute
1.1K
Like ricevuti
Archisio - Cofra Architettura Design Innovazione - Progetto Ristrutturazione
Ristrutturazione ed ampliamento di edificio di epoca medioevale. Sono stati modificati i prospetti interni e il corpo interno. E' stato realizzato un piano interrato sotto la casa principale, il giardino ed il corpo interno, illuminato da un giardino-acquario interrato. Impianti e serramenti a risparmio energetico, pannelli solari termici e fotovoltaici, tetto ventilato. Arredamento su misura.

Ridistribuzione spazi - Padova (PD)

Numero di immagini
6
Visite ricevute
441
Like ricevuti
Archisio - Cofra Architettura Design Innovazione - Progetto Ridistribuzione spazi
Ridistribuzione degli spazi interni con realizzazione di soggiorno/taverna

Ristrutturazione interna di un miniappartamento - Padova (PD)

Numero di immagini
17
Visite ricevute
480
Like ricevuti
Archisio - Cofra Architettura Design Innovazione - Progetto Ristrutturazione interna di un miniappartamento
Ristrutturazione interna di un miniappartamento, con realizzazione di arredamento particolare su misura. La zona cucina e bagno sono racchiuse all'interno di un volume cilindrico, chiudibili con porte-pareti scorrevoli ad incasso.

Ristrutturazione ambienti - Venezia (VE)

Numero di immagini
11
Visite ricevute
414
Like ricevuti
Archisio - Cofra Architettura Design Innovazione - Progetto Ristrutturazione ambienti
Sistemazione, restauro ed arredamento di un appartamento/ufficio, rispettando le caratteristiche tipiche veneziane.

Ammodernamento palazzo - Padova (PD)

Numero di immagini
7
Visite ricevute
471
Like ricevuti
Archisio - Cofra Architettura Design Innovazione - Progetto Ammodernamento palazzo
Installazione di ascensore per superamento barriere architettoniche.

Riciclaggio intelligente - Padova (PD)

Numero di immagini
5
Visite ricevute
468
Like ricevuti
Archisio - Cofra Architettura Design Innovazione - Progetto Riciclaggio intelligente
Targhette segna ufficio con staffa in metallo e porta cd su cui scrivere i nomi, studio di insegna su policarbonato fissato su staffe in metallo.

Proposta di chiesa con due tipologie di tetto - Padova (PD)

Numero di immagini
8
Visite ricevute
477
Like ricevuti
Archisio - Cofra Architettura Design Innovazione - Progetto Proposta di chiesa con due tipologie di tetto
Proposta di chiesa con due tipologie di tetto

Videodiscoteca all'aperto - Paola (CS)

Numero di immagini
6
Visite ricevute
428
Like ricevuti
Archisio - Cofra Architettura Design Innovazione - Progetto Videodiscoteca allaperto
Videodiscoteca all'aperto copertura a vele e piste da ballo costruite su terrazzamenti a quote diverse in zona collinare, vista sul mare.

Sistemazione interna di un appartamento - Padova (PD)

Numero di immagini
6
Visite ricevute
524
Like ricevuti
Archisio - Cofra Architettura Design Innovazione - Progetto Sistemazione interna di un appartamento
Sistemazione interna di un appartamento nel sottotetto di un palazzo, con realizzazione di un soppalco con ampie finestrature sul tetto per dare luce alla zona giorno. Impianto di cliamatizzazione a risparmio energetico

Ampliamento sede - Padova (PD)

Numero di immagini
65
Visite ricevute
1.1K
Like ricevuti
Archisio - Cofra Architettura Design Innovazione - Progetto Ampliamento sede
Sistemazione e ampliamento della sede della cofra. Inserimento di una serra/giardino per bilanciare l'umidità con una vasca d'acqua, e la qualità dell'aria con piante che la purificano. Un nuovo serramento orizzontale scorrevole unito alla grande parete verde verticale, permette una climatizzazione naturale e rende lo spazio più confortevole. Realizzazione di un servizio igienico sperimentale, automatizzato e illuminato a led. Natura, spazio, risparmio energetico e comfort hanno invaso la cofra!

Redistribuzione degli spazi interni - Padova (PD)

Numero di immagini
16
Visite ricevute
494
Like ricevuti
Archisio - Cofra Architettura Design Innovazione - Progetto Redistribuzione degli spazi interni
Redistribuzione degli spazi interni di un appartamento con rifacimento degli impianti e dei serramenti

Ristrutturazione interna - Padova (PD)

Numero di immagini
15
Visite ricevute
477
Like ricevuti
Archisio - Cofra Architettura Design Innovazione - Progetto Ristrutturazione interna
Ristrutturazione interna di un appartamento con ridistribuzione degli spazi. Rifacimento completo degli impianti e delle finiture. Realizzazione di un pavimento in legno in parchetti di rovere posati a spina di pesce, con cornice, conforme alle caratteristiche originali della casa

Ristrutturazione appartamento - Padova (PD)

Numero di immagini
13
Visite ricevute
438
Like ricevuti
Archisio - Cofra Architettura Design Innovazione - Progetto Ristrutturazione appartamento
Ristrutturazione di un miniappartamento con realizzazione di un arredamento particolare su misura.

Creazione abitazione - Padova (PD)

Numero di immagini
10
Visite ricevute
473
Like ricevuti
Archisio - Cofra Architettura Design Innovazione - Progetto Creazione abitazione
Creazione di unità abitativa da ambiente artigianale.

Ristrutturazione abitazione bifamiliare - Padova (PD)

Numero di immagini
17
Visite ricevute
485
Like ricevuti
Archisio - Cofra Architettura Design Innovazione - Progetto Ristrutturazione abitazione bifamiliare
Ristrutturazione con modifica redistributiva di porzione di bifamiliare organizzata su più livelli attorno ad una scala centrale con pavimenti in legno e ampie vetrate su giardino.

Ristrutturazione appartamento - Padova (PD)

Numero di immagini
12
Visite ricevute
462
Like ricevuti
Archisio - Cofra Architettura Design Innovazione - Progetto Ristrutturazione appartamento
Ristrutturazione di un appartamento con terrazza, con rifacimento degli impianti e delle finiture interne

Ristrutturazione - Padova (PD)

Numero di immagini
6
Visite ricevute
415
Like ricevuti
Archisio - Cofra Architettura Design Innovazione - Progetto Ristrutturazione
Ristrutturazione ed ampliamento di una casa con giardino, recuperando anche lo spazio del sottotetto.

Ristrutturazione casa - Padova (PD)

Numero di immagini
8
Visite ricevute
434
Like ricevuti
Archisio - Cofra Architettura Design Innovazione - Progetto Ristrutturazione casa
Ristrutturazione di una casa organizzata su un piano terra, realizzando un nuovo piano primo innalzando il tetto, il tutto è stato eseguito senza aumentare il peso sulle fondazioni esistenti.

Costruzione casa singola - Cadoneghe (PD)

Numero di immagini
17
Visite ricevute
485
Like ricevuti
Archisio - Cofra Architettura Design Innovazione - Progetto Costruzione casa singola
Realizzazione di una casa singola sviluppata su due piani con portici, terrazza ed ampio giardino. Ad una zona giorno comune si collegano due spazi indipendenti, uno per la zona notte dei figli ed una per lo spazio esclusivo dei genitori.

Ristrutturazione - Padova (PD)

Numero di immagini
9
Visite ricevute
422
Like ricevuti
Archisio - Cofra Architettura Design Innovazione - Progetto Ristrutturazione
Ristrutturazione di un appartamento con rifacimento interno integrale. Realizzazione di un ampio soggiorno cucina pranzo caratterizzati da un camino centrale, che per esigenze strutturali è stato appeso ad una trave portante inserita nel soffitto

Restauro - Padova (PD)

Numero di immagini
14
Visite ricevute
493
Like ricevuti
Archisio - Cofra Architettura Design Innovazione - Progetto Restauro
Restauro di alcuni spazi di un edificio storico per realizzare un monolocale con servizi, prospiciente una grande terrazza.

Ristrutturazione - Adria (RO)

Numero di immagini
9
Visite ricevute
401
Like ricevuti
Archisio - Cofra Architettura Design Innovazione - Progetto Ristrutturazione
Ristrutturazione di un appartamento con riorganizzazione degli spazi e rifacimento integrale degli impianti e finiture.

Restauro - Casalserugo (PD)

Numero di immagini
13
Visite ricevute
479
Like ricevuti
Archisio - Cofra Architettura Design Innovazione - Progetto Restauro
Restauro di vecchia casa di campagna, mantenendo le murature originali, integrate da nuove strutture compatibili con le caratteristiche originali, realizzando due unità abitative indipendenti.

Ristrutturazione - Padova (PD)

Numero di immagini
8
Visite ricevute
448
Like ricevuti
Archisio - Cofra Architettura Design Innovazione - Progetto Ristrutturazione
Ristrutturazione di un appartamento mansardato con ampia zona giorno su grande terrazza. Inserimento di ascensore e rifacimento del tetto. Per quest'ultimo si è sostituita la struttura travi-solai con struttura a membrana senza travi sporgenti. Questo significa stessa resistenza con minor spessore e conseguente recupero di spazio interno.

Restauro edificio - Padova (PD)

Numero di immagini
17
Visite ricevute
477
Like ricevuti
Archisio - Cofra Architettura Design Innovazione - Progetto Restauro edificio
Restauro di un edificio occhio di portico con realizzazione di piano interrato e particolare soluzione di terrazza con pavimentazione di vetro. Il giardino è stato inserito in una serra di vetro, collegata con il soggiorno,mediante un serramento in legno a scomparsa totale sotto quota pavimento. L'arredamento di particolare pregio e finitura è stato realizzato su disegno specifico.

Ristrutturazione - Padova (PD)

Numero di immagini
7
Visite ricevute
410
Like ricevuti
Archisio - Cofra Architettura Design Innovazione - Progetto Ristrutturazione
Ristrutturazione ed arredamento di un appartamento bilocale, in un edificio multipiano.

Restauro - Padova (PD)

Numero di immagini
8
Visite ricevute
449
Like ricevuti
Archisio - Cofra Architettura Design Innovazione - Progetto Restauro
Restauro di palazzo d'epoca con ripristino di volte a crocera mattoni faccia vista nel portico pedonale, ricerca di soluzioni architettoniche per mantenere inalterate le caratteristiche strutturali dell'epoca

Restauro - Padova (PD)

Numero di immagini
12
Visite ricevute
451
Like ricevuti
Archisio - Cofra Architettura Design Innovazione - Progetto Restauro
Restauro in palazzo storico con soluzioni tecniche strutturali particolari, con finiture conformi alle originali. Recupero della struttura in legno del tetto, riorganizzazione degli spazi interni, con rifacimento integrale degli impianti e delle finiture.

Città universitaria - Padova (PD)

Numero di immagini
10
Visite ricevute
428
Like ricevuti
Archisio - Cofra Architettura Design Innovazione - Progetto Citt universitaria
Città universitaria per circa 9000 studenti, 900 professori ed assistenti, 600 dipendenti amministrativi, collegata ad un campus residenziale, composta da: aule, laboratori, istituti, rettorato, uffici amministrativi, biblioteca per 500.000 volumi con sala di lettura, ristorante da 6.600 posti, teatro, centro sportivo completo. Superficie edificata mq 120.000.

Realizzazione di un tavolo ampliabile - Padova (PD)

Numero di immagini
12
Visite ricevute
430
Like ricevuti
Archisio - Cofra Architettura Design Innovazione - Progetto Realizzazione di un tavolo ampliabile
Realizzazione di un tavolo ampliabile con vano multifunzione a scomparsa utilizzabile per contenere accessori, stoviglie e molto altro, anche un piccolo prato. Www.cofradesign.it

Progettazione di totem interattivo - Padova (PD)

Numero di immagini
2
Visite ricevute
437
Like ricevuti
Archisio - Cofra Architettura Design Innovazione - Progetto Progettazione di totem interattivo
Progettazione di totem interattivo con funzione informativa da collocare all'interno di un centro commerciale. La componente hardware e software è realizzata da mentalab www.mentalab.it

Progettazione di totem interattivo - Padova (PD)

Numero di immagini
3
Visite ricevute
603
Like ricevuti
Archisio - Cofra Architettura Design Innovazione - Progetto Progettazione di totem interattivo
Progettazione di totem interattivo con funzione di assistente personale informativo. La componente hardware e software è realizzata da mentalab www.mentalab.it

Progettazione di prototipi d'arredamento per negozi alimentari. - Padova (PD)

Numero di immagini
6
Visite ricevute
548
Like ricevuti
Archisio - Cofra Architettura Design Innovazione - Progetto Progettazione di prototipi darredamento per negozi alimentari
Progettazione di prototipi d'arredamento per negozi alimentari.

Allestimento negozio di pellicceria con vetrina scenografica - Saccolongo (PD)

Numero di immagini
3
Visite ricevute
405
Like ricevuti
Archisio - Cofra Architettura Design Innovazione - Progetto Allestimento negozio di pellicceria con vetrina scenografica
Allestimento negozio di pellicceria con vetrina scenografica; visivamente collegata con l'esterno.

Ristrutturazione di un appartamento in un edificio bifamiliare - Padova (PD)

Numero di immagini
3
Visite ricevute
423
Like ricevuti
Archisio - Cofra Architettura Design Innovazione - Progetto Ristrutturazione di un appartamento in un edificio bifamiliare
Ristrutturazione di un appartamento in un edificio bifamiliare. Riorganizzazione degli spazi interni con arredamento su misura.

Villa con giardino - Trebaseleghe (PD)

Numero di immagini
8
Visite ricevute
461
Like ricevuti
Archisio - Cofra Architettura Design Innovazione - Progetto Villa con giardino
In una villa con giardino è stato recuperato il piano interrato con ridistribuzione degli gli spazi interni ed è stato ampliato il portico.

Progetto ristrutturazione - Valdagno (VI)

Numero di immagini
2
Visite ricevute
433
Like ricevuti
Archisio - Cofra Architettura Design Innovazione - Progetto Progetto ristrutturazione
Ristrutturazione di appartamento in edificio del 1940. Ridistribuzione interna degli spazi, rifacimento integrale degli impianti con risparmio energetico e delle finiture.

Progetto per l'edificio direzionale - Padova (PD)

Numero di immagini
5
Visite ricevute
511
Like ricevuti
Archisio - Cofra Architettura Design Innovazione - Progetto Progetto per ledificio direzionale
Progetto di massima per la sistemazione dell'edificio direzionale. Era prevista la realizzazione di serre sulle facciate esistenti per climatizzare e purificare l'aria poco salubre della zona industriale, migliorando di conseguenza anche la vista dall'interno degli uffici. Inoltre i parcheggi adiacenti al costruito venivano interrati, lasciando spazio a giardini e il loro collegamento con gli uffici avveniva attraverso un tunnel di vetro.

Casa in centro storico - Padova (PD)

Numero di immagini
6
Visite ricevute
402
Like ricevuti
Archisio - Cofra Architettura Design Innovazione - Progetto Casa in centro storico
Casa in centro storico composta da due occhi di portico e giardino interno sviluppata su cinque livelli in progetto si sono recuperate e valorizzate le caratteristiche originali, eliminando le modifiche e le sovrastrutture recenti

Restauro appartamento - Padova (PD)

Numero di immagini
2
Visite ricevute
380
Like ricevuti
Archisio - Cofra Architettura Design Innovazione - Progetto Restauro appartamento
Restauro di un appartamento recuperando le finiture originali, ristrutturazione del piano terra con realizzazione di spazi indipendenti.

Restauro di palazzo storico - Padova (PD)

Numero di immagini
6
Visite ricevute
433
Like ricevuti
Archisio - Cofra Architettura Design Innovazione - Progetto Restauro di palazzo storico
Restauro di palazzo storico con intervento strutturale di consolidamento di facciata

Studio per la realizzazione degli spazi interni - Vicenza (VI)

Numero di immagini
1
Visite ricevute
410
Like ricevuti
Archisio - Cofra Architettura Design Innovazione - Progetto Studio per la realizzazione degli spazi interni
Studio per la realizzazione degli spazi interni di un appartamento in base alle necessità del cliente.

Sistemazione di porzione bifamigliare - Padova (PD)

Numero di immagini
2
Visite ricevute
413
Like ricevuti
Archisio - Cofra Architettura Design Innovazione - Progetto Sistemazione di porzione bifamigliare
Sistemazione di porzione bifamigliare con riorganizzazione degli spazi interni su due piani con realizzazione di studio professionale.

Costruzione edificio - Saonara (PD)

Numero di immagini
4
Visite ricevute
432
Like ricevuti
Archisio - Cofra Architettura Design Innovazione - Progetto Costruzione edificio
Costruzione di un edificio per cinque unità abitative ciascuna con ingresso indipendente. Quattro unità sono articolate su due piani, con giardino esclusivo per ogni abitazione.la quinta unità si sviluppa al terzo piano con due terrazze esclusive,

Ristrutturazione - Rovigo (RO)

Numero di immagini
3
Visite ricevute
399
Like ricevuti
Archisio - Cofra Architettura Design Innovazione - Progetto Ristrutturazione
Ristrutturazione di porzione di edificio in centro storico con rivisitazione statica

Ristrutturazione di midi - Padova (PD)

Numero di immagini
3
Visite ricevute
442
Like ricevuti
Archisio - Cofra Architettura Design Innovazione - Progetto Ristrutturazione di midi
Ristrutturazione di midi appartamento con mansarda

Riorganizzazione - Padova (PD)

Numero di immagini
2
Visite ricevute
417
Like ricevuti
Archisio - Cofra Architettura Design Innovazione - Progetto Riorganizzazione
Riorganizzazione di un appartamento con terrazza, con rifacimento integrale delle finiture e degli impianti

Modifiche distributive - Padova (PD)

Numero di immagini
1
Visite ricevute
453
Like ricevuti
Archisio - Cofra Architettura Design Innovazione - Progetto Modifiche distributive
Modifiche distributive interne ad un appartamento, con rifacimento integrale degli impianti e delle finiture. Arredamento con mobili su disegno specifico.

Ristrutturazione di ufficio - Padova (PD)

Numero di immagini
2
Visite ricevute
431
Like ricevuti
Archisio - Cofra Architettura Design Innovazione - Progetto Ristrutturazione di ufficio
Ristrutturazione di ufficio con rifacimento di tutte le finiture e degli impianti e studio dell'arredamento per il ricollocamento di mobili esistenti.

Distribuzione interna di un appartamento - Vicenza (VI)

Numero di immagini
2
Visite ricevute
524
Like ricevuti
Archisio - Cofra Architettura Design Innovazione - Progetto Distribuzione interna di un appartamento
Distribuzione interna con analisi dell'arredamento di un appartamento di montagna

Redistribuzione - Padova (PD)

Numero di immagini
1
Visite ricevute
393
Like ricevuti
Archisio - Cofra Architettura Design Innovazione - Progetto Redistribuzione
Redistribuzione degli spazi del piano terra con ampliamento dell’ingresso

Ristrutturazione - Padova (PD)

Numero di immagini
2
Visite ricevute
389
Like ricevuti
Archisio - Cofra Architettura Design Innovazione - Progetto Ristrutturazione
Ristrutturazione ed ampliamento di edificio su due piani con ampia area a verde

Ristrutturazione - Padova (PD)

Numero di immagini
3
Visite ricevute
407
Like ricevuti
Archisio - Cofra Architettura Design Innovazione - Progetto Ristrutturazione
Ristrutturazione di occhio di portico in centro storico con giardino e serra.

Restauro di un appartamento - Padova (PD)

Numero di immagini
1
Visite ricevute
399
Like ricevuti
Archisio - Cofra Architettura Design Innovazione - Progetto Restauro di un appartamento
Restauro di un appartamento inserito in un edificio a torre medioevale con modifiche distributive interne. Rifacimento integrale degli impianti e delle finiture interne..

Restauro - Padova (PD)

Numero di immagini
3
Visite ricevute
456
Like ricevuti
Archisio - Cofra Architettura Design Innovazione - Progetto Restauro
Restauro di un appartamento in un palazzo storico, recuperando ed integrando le finiture esistenti. Riorganizzazione degli spazi e riapertura di una terrazza.

Ristrutturazione di appartamento - Padova (PD)

Numero di immagini
1
Visite ricevute
391
Like ricevuti
Archisio - Cofra Architettura Design Innovazione - Progetto Ristrutturazione di appartamento
Ristrutturazione di appartamento su edificio di due piani con interventi strutturali ed redistributivi degli ambienti interni.

Ridistribuzione degli spazi interni di un appartamento - Padova (PD)

Numero di immagini
1
Visite ricevute
421
Like ricevuti
Archisio - Cofra Architettura Design Innovazione - Progetto Ridistribuzione degli spazi interni di un appartamento
Ridistribuzione degli spazi interni per rendere più funzionale l'appartamento.

Ristrutturazione - Padova (PD)

Numero di immagini
1
Visite ricevute
385
Like ricevuti
Archisio - Cofra Architettura Design Innovazione - Progetto Ristrutturazione
Ristrutturazione

Redistribuzione degli spazi interni di appartamento - Padova (PD)

Numero di immagini
1
Visite ricevute
433
Like ricevuti
Archisio - Cofra Architettura Design Innovazione - Progetto Redistribuzione degli spazi interni di appartamento
Redistribuzione degli spazi interni di appartamento per la trasformazione da residenziale ad attività didattica

Studio medico - Padova (PD)

Numero di immagini
1
Visite ricevute
410
Like ricevuti
Archisio - Cofra Architettura Design Innovazione - Progetto Studio medico
Studio medico

Sistemazione con riorganizzazione degli spazi della zona giorno - Padova (PD)

Numero di immagini
1
Visite ricevute
402
Like ricevuti
Archisio - Cofra Architettura Design Innovazione - Progetto Sistemazione con riorganizzazione degli spazi della zona giorno
Sistemazione con riorganizzazione degli spazi della zona giorno e allestimento di grande terrazza a giardino pensile.

Sistemazione dell’appartamento - Padova (PD)

Numero di immagini
1
Visite ricevute
400
Like ricevuti
Archisio - Cofra Architettura Design Innovazione - Progetto Sistemazione dellappartamento
Sistemazione dell’appartamento con redistribuzione degli spazi zona giorno e progettazione dell’arredamento.

Ristrutturazione di villetta unifamigliare - Padova (PD)

Numero di immagini
2
Visite ricevute
410
Like ricevuti
Archisio - Cofra Architettura Design Innovazione - Progetto Ristrutturazione di villetta unifamigliare
Ristrutturazione di villetta unifamigliare su due piani con giardino.

Ristrutturazione di porzione di villa - Padova (PD)

Numero di immagini
1
Visite ricevute
396
Like ricevuti
Archisio - Cofra Architettura Design Innovazione - Progetto Ristrutturazione di porzione di villa
Ristrutturazione di porzione di villa
Vai su
Invia una richiesta di lavoro a Cofra Architettura Design Innovazione
+ Allega file
Invia
 
Architetti vicino a te
Professionisti selezionati:
Cambia filtri
INVIA
Modifica filtri
Annulla
Chiedi un preventivo gratuito a Cofra Architettura Design Innovazione