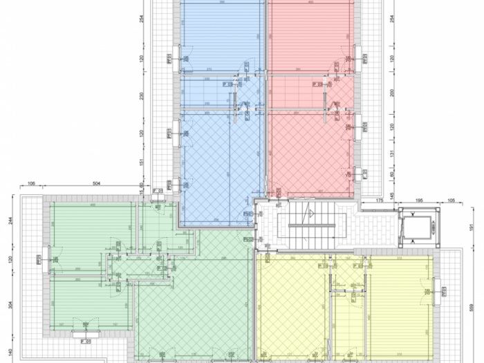
Recupero di sottotetto – via matteotti n. 32, rozzano (mi)
Realizzazione di n. 4 appartamenti ad uso residenziale (tre bilocali e un trilocale)
Data inizio operazione: ottobre 2011
Data fine operazione: luglio 2012
Chiedi un preventivo gratuito aStudio Ingegneria & Architettura Lamura
INFORMATIVA
Questo sito o gli strumenti terzi da questo utilizzati si avvalgono di cookie necessari al funzionamento ed utili alle finalità illustrate nella cookie policy. Se vuoi saperne di più o negare il consenso a tutti o ad alcuni cookie, consulta la cookie policy. Chiudendo questo banner, scorrendo questa pagina, cliccando su un link o proseguendo la navigazione in altra maniera, acconsenti all'uso dei cookie.