Menu

Gaia Brunello Photohomestaging

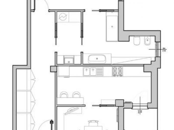
Progetto di ristrutturazione di un bilocale - Monticello Brianza (LC)

Numero di immagini
4
Visite ricevute
483
Like ricevuti
L'appartamento è un bilocale da ristrutturare ma ha un buon potenziale: ampia metratura (ca 90 mq), piano alto, quartiere residenziale tranquillo.
 
Vedi gli altri progetti
 
Vai su
Invia una richiesta di lavoro a Gaia Brunello Photohomestaging
+ Allega file
Invia
 
Fotografi di Interni vicino a te
Professionisti selezionati:
Cambia filtri
INVIA
Modifica filtri
Annulla
Chiedi un preventivo gratuito a Gaia Brunello Photohomestaging