Menu

Enrico Paolozzi

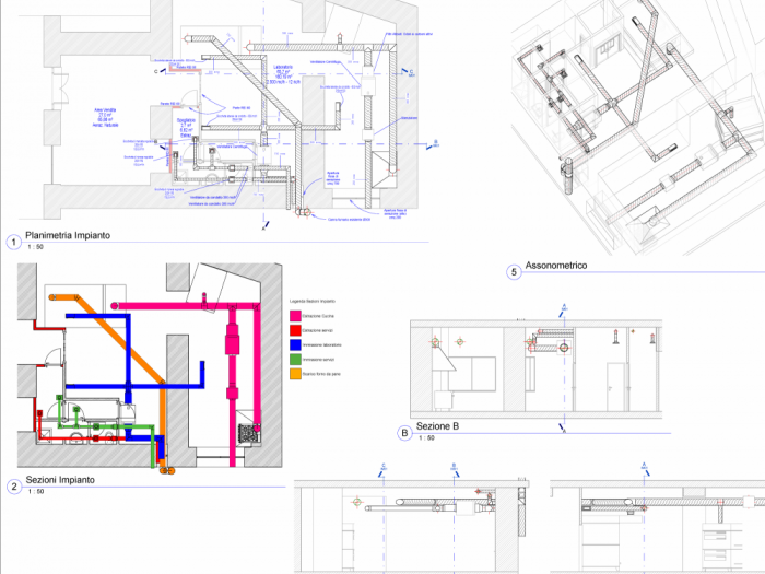
Laboratorio - cucina - Roma (RM)

Numero di immagini
2
Visite ricevute
549
Like ricevuti
Laboratorio - cucina
 
Vedi gli altri progetti
 
Vai su
Invia una richiesta di lavoro a Enrico Paolozzi
+ Allega file
Invia
 
Ingegneri Civili vicino a te
Professionisti selezionati:
Cambia filtri
INVIA
Modifica filtri
Annulla
Chiedi un preventivo gratuito a Enrico Paolozzi