- le nostre abitazioni appartengono tutte alla classe energetica a 4 la più alta della normativa nazionale. Su richiesta è possibile aumentarne l’efficienza fino al consumo quasi zero;
- bio-house è l’ unico referente per il cliente durante la costruzione e nell’assistenza post-vendita. Il costo dell’abitazione ha il prezzo bloccato e non subisce aumenti dovuti a imprevisti;
- la durata dei lavori va dai 5 ai 7 mesi;
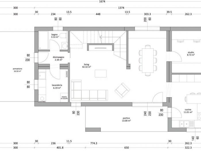
- il prezzo e le superfici indicate sono relativi all’ abitazione. Di norma sono esclusi gli accessori quali portici, pompeiane, autorimesse, terrazze ecc. ;
- le abitazioni non richiedono l’ allacciamento all’ utenza del gas metano.
Questo sito o gli strumenti terzi da questo utilizzati si avvalgono di cookie necessari al funzionamento ed utili alle finalità illustrate nella cookie policy. Se vuoi saperne di più o negare il consenso a tutti o ad alcuni cookie, consulta la cookie policy. Chiudendo questo banner, scorrendo questa pagina, cliccando su un link o proseguendo la navigazione in altra maniera, acconsenti all'uso dei cookie.